EasyManua.ls Logo

Samsung LN22B460 - Wall Mount Kit Specifications (VESA); Using the Anti-Theft Kensington Lock

Samsung LN22B460
89 pages
Print Icon
To Next Page IconTo Next Page
To Next Page IconTo Next Page
To Previous Page IconTo Previous Page
To Previous Page IconTo Previous Page
Loading...
English - 38
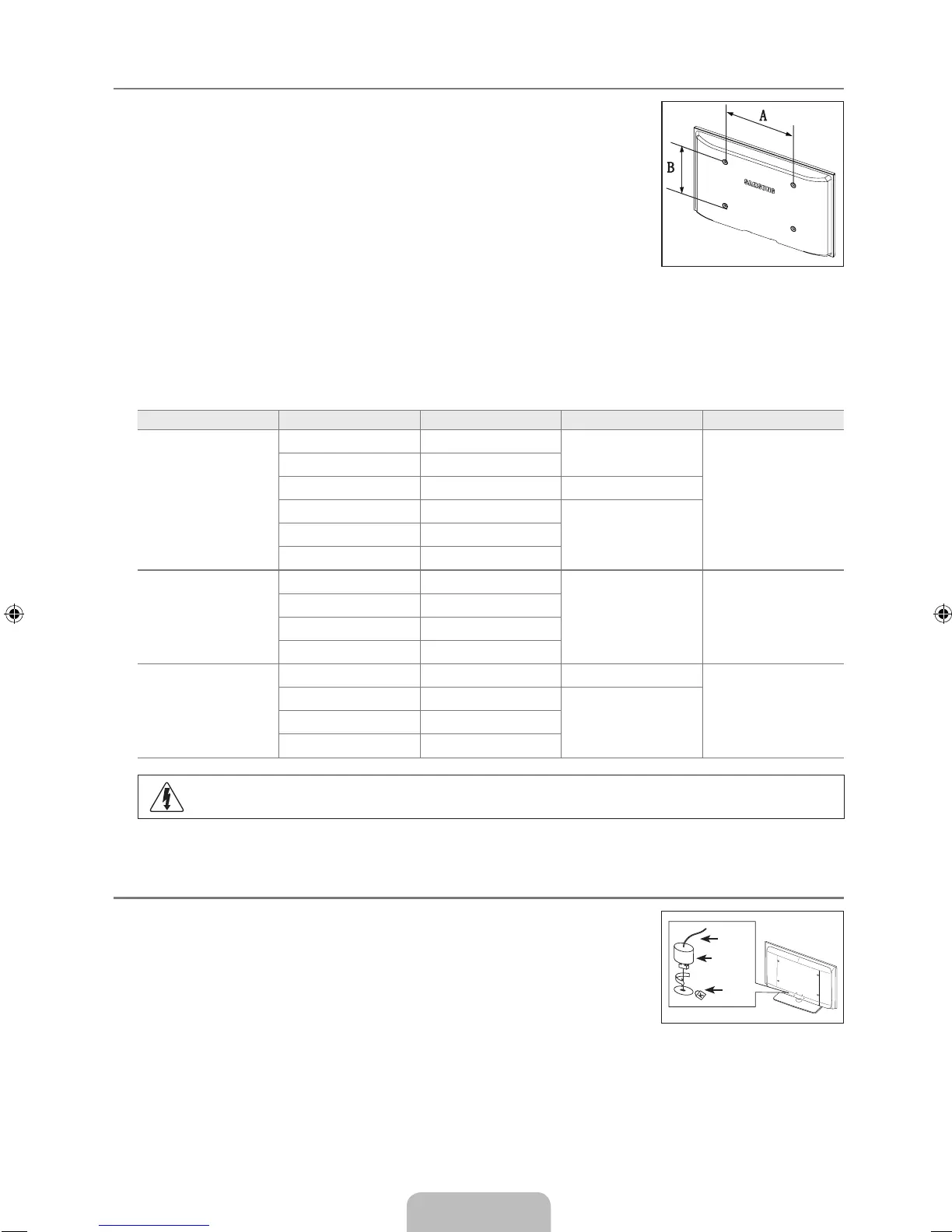
WallMountKitSpecications(VESA)
Install your wall mount on a solid wall perpendicular to the oor. When attaching to other
building materials, please contact your nearest dealer. If installed on a ceiling or slanted wall, it
may fall and result in severe personal injury.
Standard dimensions for wall mount kits are shown in the table above.
When purchasing our wall mount kit, a detailed installation manual and all parts necessary
for assembly are provided.
Do not use screws longer than the standard dimension, as they may cause damage to the
inside of the TV set.
For wall mounts that do not comply with the VESA standard screw specications, the
length of the screws may differ depending on their specications.
Do not use screws that do not comply with the VESA standard screw specications.
Do not fasten the screws too strongly, this may damage the product or cause the product to fall, leading to personal injury.
Samsung is not liable for these kinds of accidents.
Samsung is not liable for product damage or personal injury when a non-VESA or non-specied wall mount is used or the
consumer fails to follow the product installation instructions.
Our 57” and 63” models do not comply with VESA Specications. Therefore, you should use our dedicated wall mount kit for
this model.
Do not exceed 15 degrees tilt when mounting this TV.
Product Family inches VESA Spec. (A * B) Standard Screw Quantity
LCD-TV
19 ~ 22 100 x 100
M4
4
23 ~ 29 200 x 100
30 ~ 40 200 x 200 M6
46 ~ 55 400 x 400
M857 ~ 70 800 x 400
80 ~ 1400 x 800
PDP-TV
42 ~ 50 400 x 400
M8 4
58 ~ 63 600 x 400
70 ~ 800 x 400
80 ~ 1400 x 800
LFD
30 ~39 200 x 200 M6
4
40 ~ 52 400 x 400
M855 ~ 70 800 x 400
70 ~ 1400 x 800
Do not install your Wall Mount Kit while your TV is turned on. It may result in personal injury due to electric shock.
Using the Anti-Theft Kensington Lock
The Kensington Lock is a device used to physically x the system when using it in a public
place. The appearance and locking method may differ from the illustration depending on the
manufacturer.
Refer to the manual provided with the Kensington Lock for proper use. The locking device has
to be purchased separately.
The location of the Kensington Lock may be different depending on its model.
1.
Insert the locking device into the Kensington slot on the LCD TV (
1
) and turn it in the
locking direction (
2
).
2.
Connect the Kensington Lock cable (
3
).
3.
Fix the Kensington Lock to a desk or a heavy stationary object.
¦
N
N
N
N
N
N
N
N
N
¦
N
3
1
2
BN68-02034A-00L02.indb 38 2009-03-03 �� 10:02:19

Table of Contents

Other manuals for Samsung LN22B460

Related product manuals