EasyManua.ls Logo

Samsung MH080FXEA4 - Page 158

Samsung MH080FXEA4
208 pages
Print Icon
To Next Page IconTo Next Page
To Next Page IconTo Next Page
To Previous Page IconTo Previous Page
To Previous Page IconTo Previous Page
Loading...
10-2Samsung Electronics
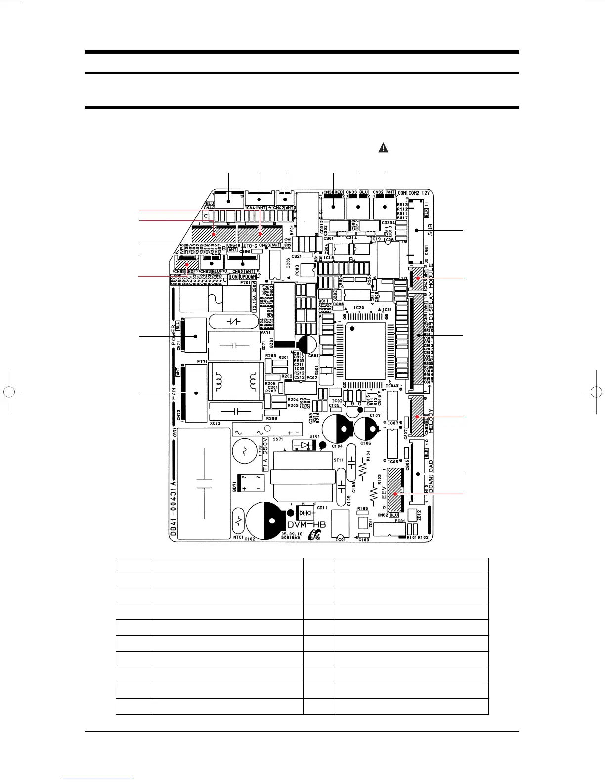
!
Motor Rpm FeedBack
@
ROOM/EVA IN
#
EVE OUT
$
COM1
%
COM2
^
12V
&
SUB PCB Connection
*
Module PCB Connection
(
Display PCB Connection
)
Melody
1
DownLoad Connector
2
EEV
3
Indoor Fan Motor
4
POWER
5
HVPS
6
ION
7
Blade Step Motor
8
Auto Grill Step Motor1
9
Auto Grill Step Motor2
&
*
(
)
1
2
5
6
4
3
! @ # $ % ^
MH✳✳✳FWEA/MH✳✳VW2-✳✳(MAIN PCB)
The red number connecter is not used.
8
9
7
24296A(1)_2 11/11/05 5:06 PM Page 8-17

Other manuals for Samsung MH080FXEA4

Related product manuals