EasyManua.ls Logo

Samsung MH080FXEA4A - Page 123

Samsung MH080FXEA4A
197 pages
Print Icon
To Next Page IconTo Next Page
To Next Page IconTo Next Page
To Previous Page IconTo Previous Page
To Previous Page IconTo Previous Page
Loading...
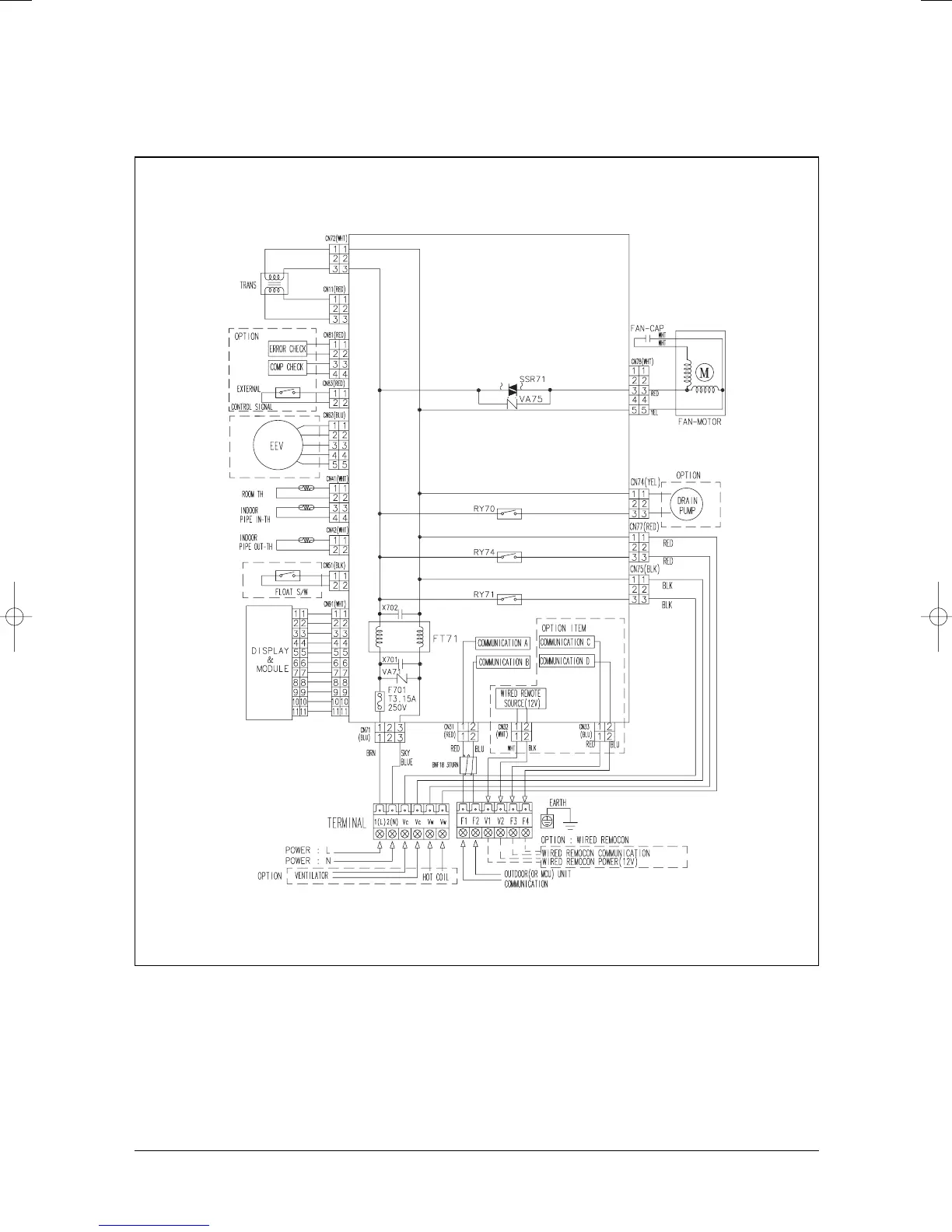
Wiring Diagram
Samsung Electronics6-7
This Document can not be used without Samsung's authorization.
MH023/026/035FEEA

Other manuals for Samsung MH080FXEA4A

Related product manuals