EasyManua.ls Logo

Samsung MH080FXEA4A - Outdoor Unit

Samsung MH080FXEA4A
197 pages
Print Icon
To Next Page IconTo Next Page
To Next Page IconTo Next Page
To Previous Page IconTo Previous Page
To Previous Page IconTo Previous Page
Loading...
Samsung Electronics6-9
This Document can not be used without Samsung's authorization.
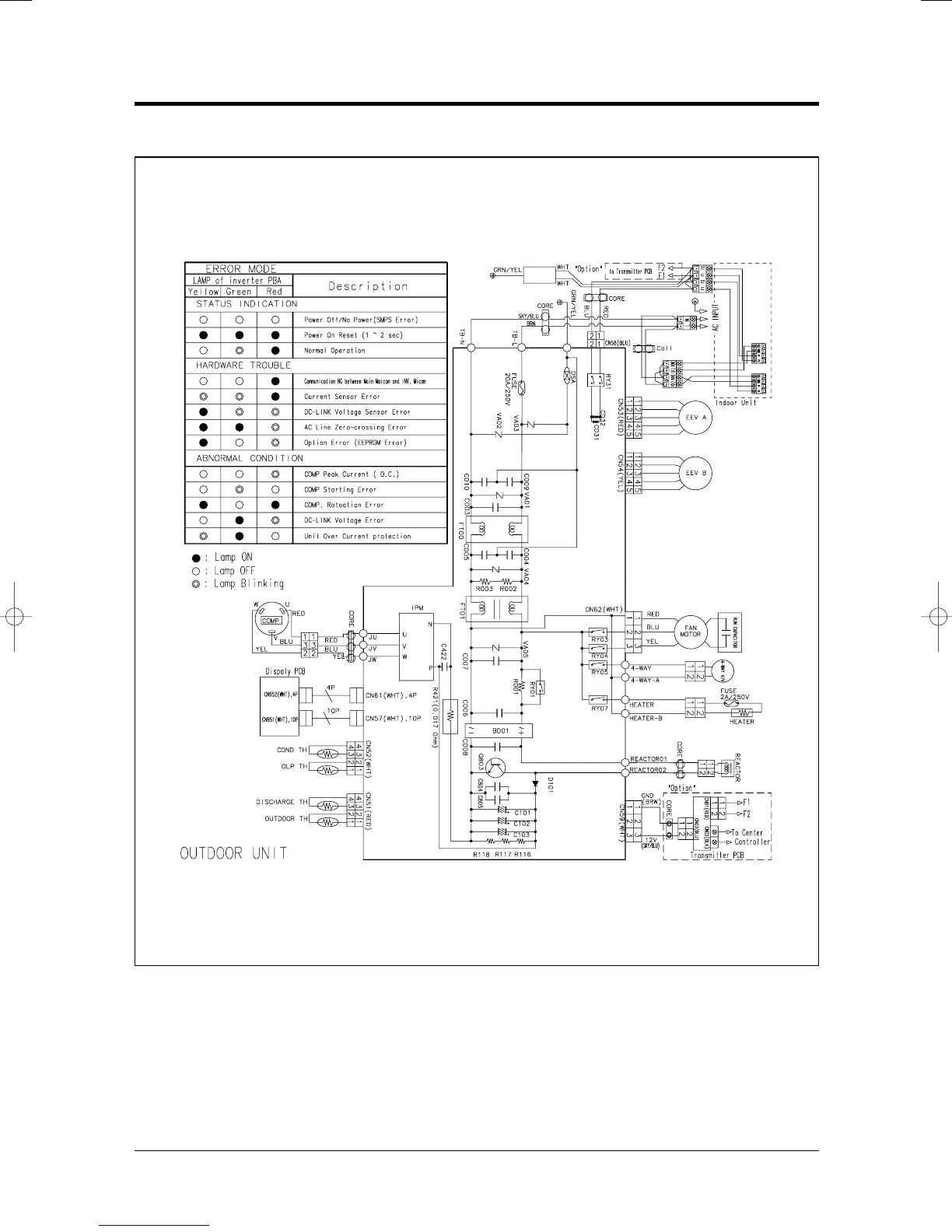
6-2 Outdoor Unit
MH040FXEA2/MH052FXEA2/MH14VP2X/MH16VP2X/MH18VP2X/MH19VP2X/MH14VW2X/MH16VW2X/MH18VW2X/MH19VW2X

Other manuals for Samsung MH080FXEA4A

Related product manuals