EasyManua.ls Logo

Samsung MH080FXEA4B - Wiring Diagram; Indoor Unit Wiring Diagrams

Samsung MH080FXEA4B
172 pages
Print Icon
To Next Page IconTo Next Page
To Next Page IconTo Next Page
To Previous Page IconTo Previous Page
To Previous Page IconTo Previous Page
Loading...
Samsung Electronics6-1
This Document can not be used without Samsung's authorization.
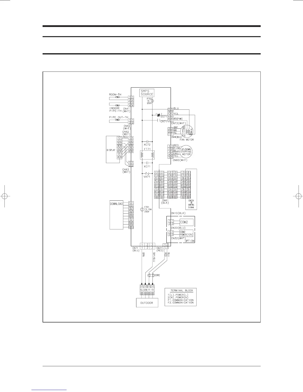
6. Wiring Diagram
6-1 Indoor Unit
MH✳✳✳FNEA/MH✳✳VF1-✳✳

Other manuals for Samsung MH080FXEA4B

Related product manuals