EasyManua.ls Logo

Samsung MH080FXEA4B - Page 105

Samsung MH080FXEA4B
172 pages
Print Icon
To Next Page IconTo Next Page
To Next Page IconTo Next Page
To Previous Page IconTo Previous Page
To Previous Page IconTo Previous Page
Loading...
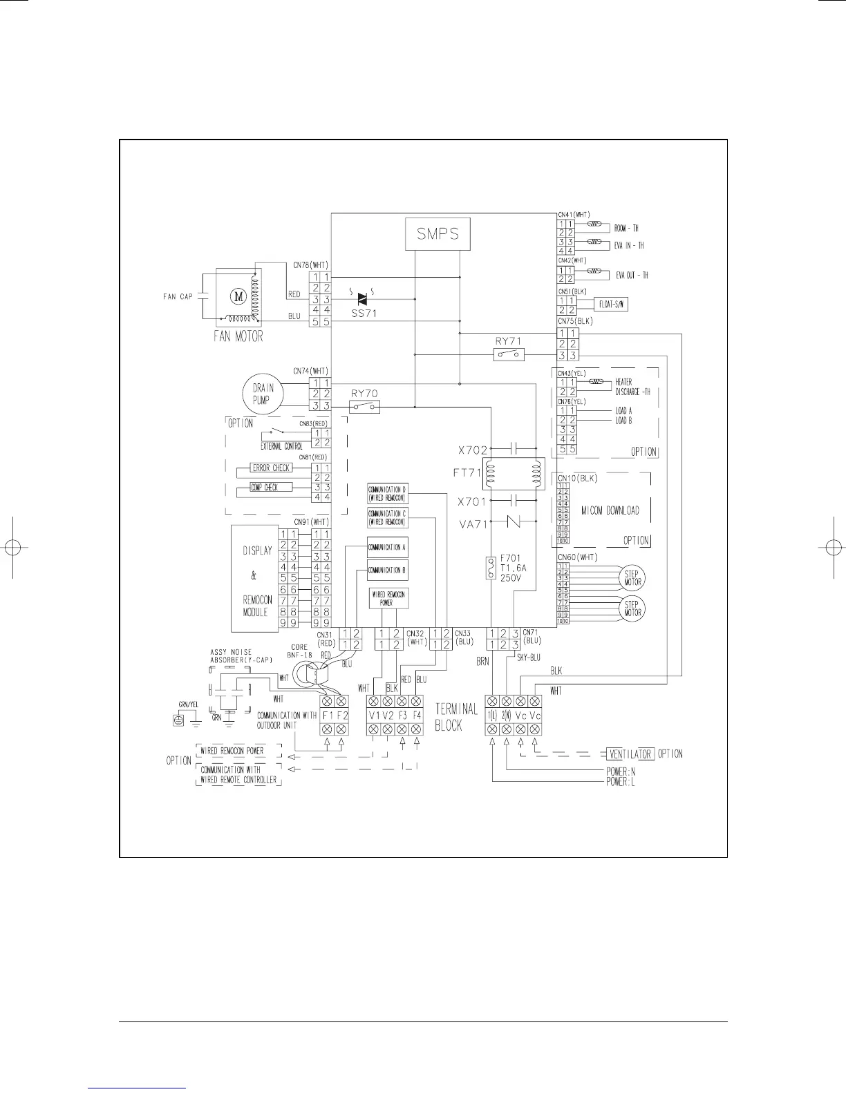
Wiring Diagram
Samsung Electronics6-5
MH✳✳✳FMEA
This Document can not be used without Samsung's authorization.

Other manuals for Samsung MH080FXEA4B

Related product manuals