EasyManua.ls Logo

Samsung SyncMaster 950p - Page 28

Samsung SyncMaster 950p
32 pages
Print Icon
To Next Page IconTo Next Page
To Next Page IconTo Next Page
To Previous Page IconTo Previous Page
To Previous Page IconTo Previous Page
Loading...
26
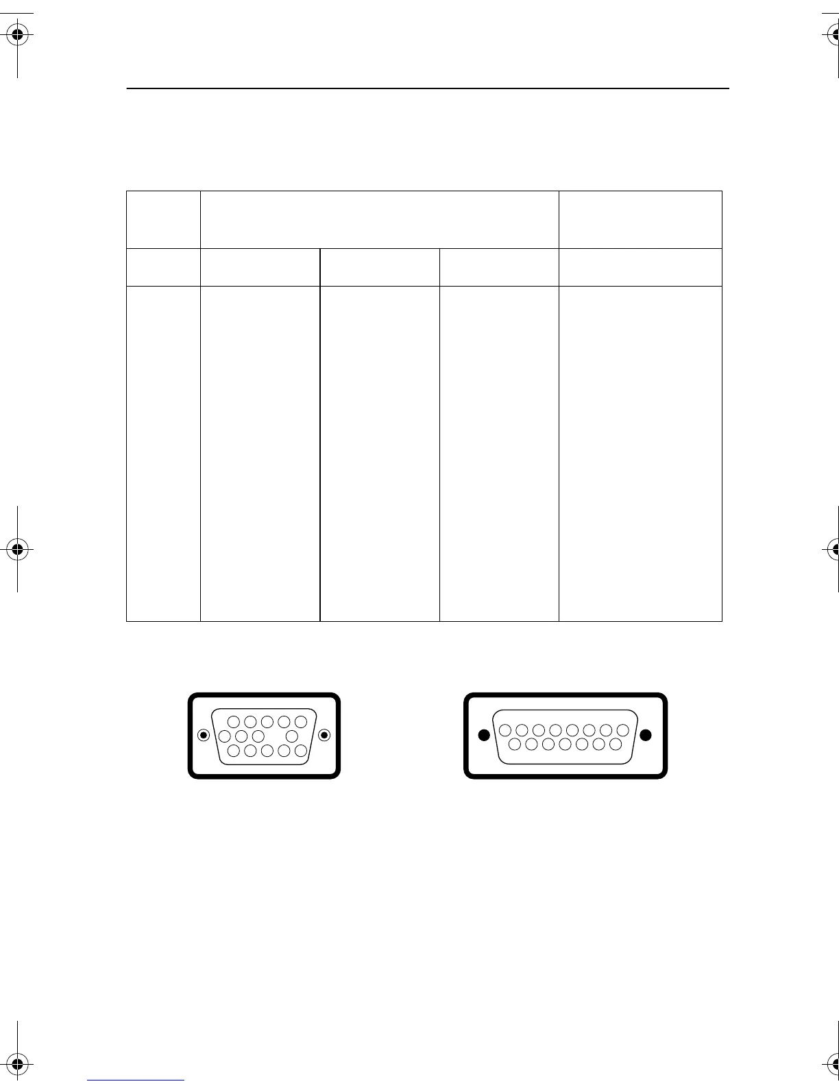
Pin Assignments
Figure 1: Male Type Figure 2: Male Type
Table 4. 15-Pin D-SUB connector
Sync.
Type
15-Pin Side of the Signal Cable
(Figure 1)
Cable Adapter
(Figure 2)
Pin No. Separate Composite Sync on Green Apple MacII
1
2
3
4
5
6
7
8
9
10
11
12
13
14
15
Red
Green
Blue
GND
DDC Return
GND-R
GND-G
GND-B
Reserved
GND-Sync./Self-
Raster
GND
DDC Data
H-Sync.
V-Sync.
DDC Clock
Red
Green
Blue
GND
DDC Return
GND-R
GND-G
GND-B
Reserved
GND-Sync./Self-
Raster
GND
DDC Data
H-Sync.
Not Used
DDC Clock
Red
Green+Sync.
Blue
GND
DDC Return
GND-R
GND-G
GND-B
Reserved
GND-Sync./Self-
Raster
GND
DDC Data
Not Used
Not Used
DDC Clock
GND-R
Red
H/V Sync.
Sense 0
Green
GND-G
Sense 1
Reserved
Blue
Sense 2
GND
V-Sync.
GND-B
GND
H-Sync.
6 7 8
X
10
11 12 13 14 15
1 2 3 4 5
9 10 11 12 13 14 15
1 2 3 4 5 6 7 8
Appendix
950pe.book Page 26 Monday, November 22, 1999 2:55 PM

Related product manuals