EasyManua.ls Logo

Samsung US24A2RC - Λ Λ; Refrigerating Cycle Block Diagram

Samsung US24A2RC
42 pages
Print Icon
To Next Page IconTo Next Page
To Next Page IconTo Next Page
To Previous Page IconTo Previous Page
To Previous Page IconTo Previous Page
Loading...
29
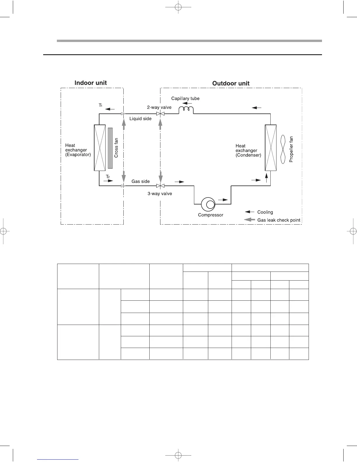
Refrigerating cycle block diagram
ΛΛ
Refrigerating cycle temperature and pressure
Operating ConditionModel
-
-
50~54
(10~12)
-
-
46~54
(7~12)
-
-
50~54
(10~12)
-
-
46~54
(7~12)
80
(26)
80
(26)
67
(20)
80
(26)
80
(26)
67
(20)
67
(20)
67
(20)
57
(13)
67
(20)
67
(20)
57
(13)
95
(35)
115
(46)
67
(20)
95
(35)
115
(46)
67
(20)
75
(24)
75
(24)
57
(13)
75
(24)
75
(24)
57
(13)
DB WB DB WB
Cooling
Standard
Max over load
Low temp
64~78
-
-
Cooling
AS18A9(0)RCF
AS18A9(0)RCFD
AS24A1(2)RC
AS24A1(2)RCD
Standard
Max over load
Low temp
57~71
-
-
STD Pressure
(psi)
3-Way Valve
Piping Temp.[°F/(°C)]
Use Temp. Condition [°F/(°C)]
Indoor
Outdoor
T1 T2
AS18A9(0)RCF SM_E_15775 3/10/05 7:15 PM Page 29

Related product manuals