EasyManua.ls Logo

Sanyo SAP-KRV246EH - Page 62

Sanyo SAP-KRV246EH
148 pages
Print Icon
To Next Page IconTo Next Page
To Next Page IconTo Next Page
To Previous Page IconTo Previous Page
To Previous Page IconTo Previous Page
Loading...
WARNING
To avoid electrical shock hazard, be sure to
disconnect power before checking, servicing
and/or cleaning any electrical parts.
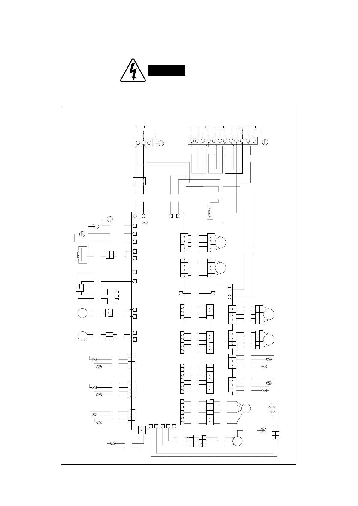
Outdoor Unit SAP-CMRV2446EH
8FA2-5257-57100-0
RED
(2P) CONNECTOR
OVERLOAD RELAY
(OLR)
2
2
1
1
REACTANCE
CONTROLLER
BLK
BLK
COIL/OUTDOOR
COIL
THERMISTOR
COMPRESSOR
THERMISTOR
OUTDOOR
THERMISTOR
COMP
1 2 3 4
1
2
1
2
YEL
YEL
BLK
BLK
1 2 3 4
A-TH
AW THERMISTOR
AN THERMISTOR
1 2 3 4
YEL
YEL
YEL
YEL
1 2 3 4
B-TH
BW THERMISTOR
BN THERMISTOR
1 2 3 4
W W
YEL
YEL
YEL
YEL
1 2 3 4
DEF1 DEF0
(2P) CONNECTOR
BLK
BLK
BLK
BLU
BLU
DEF
COIL
DEFROST VALVE
2
2
1
1
W W
RV1 RV0
(2P) CONNECTOR
WHT
BLK
BLK
BLU
BLU
RV
COIL
4WAY VALVE
2
2
1
1
W W
L2 L1 E-2
(2P) CONNECTOR
WHT
WHT
WHT
WHT
WHT
2
2
1
1
GRN/YEL
W
E-1
GRN/YEL
W
E
GRN/YEL
W
W
W
W
W
W
V
W
U
W
OLR1
W
OLR0
25A
1
2
3
4
5
6
7
8
GND
GND
9
A INDDOR
UNIT
B INDDOR
UNIT
C INDDOR
UNIT
D INDDOR
UNIT
POWER
SUPPLY
N L
TO INDDOR UNIT
WHT
REACTANCE
10
11
12
BLK
WHT
BLK
BLK
WHT
BLK
BLK
BRN
GRY
RED
BLU
FERRITE
CORE
W
ACIN1
W
ACIN2
W
SI-A
W
SI-B
FERRITE
CORE
(3P) CONNECTOR
COMPRESSOR
MOTOR
C/WS/U
R/V
WHT
CM
BLU
WHT
RED (PNK)
BLU
WHT
RED (PNK)
GRN/YEL
1 2 3
321
CRANKCASE
HEATER
(2P) CONNECTOR
WHT
WHT
WHT
WHT
WHT
1
1
2
2
W W
HEATER1 HEATER0
MAGNETIC COIL
MV0
5
GRY
5
5
4
BLK
4
4
3
YEL
3
3
2
RED
2
2
1
ORG
1
1
54321
MV0
MAGNETIC COIL
MV1
5
GRY
5
5
4
BLK
4
4
3
YEL
3
3
2
RED
2
2
1
ORG
1
1
54321
MV1
MAGNETIC COIL
MV2
5
GRY
5
5
4
BLK
4
4
3
YEL
3
3
2
RED
2
2
1
ORG
1
1
54321
MV2
MAGNETIC COIL
MV3
5
GRY
5
5
4
BLK
4
4
3
YEL
3
3
2
RED
2
2
1
ORG
1
1
54321
MV3C-TH
ORG
WHT
BRN
BLU
RED
ORG
WHT
BRN
BLU
BLK
WHT
RED
BLU
BLK
WHT
RED
BLU
RED
FAN MOTOR
1 2 3 4 5 6 7
7654321
FM
7654321
CN04 DCFM
1 2 3 4 5 6 7
7654321
7
8
8
8654321
KS23
CN03
BLK
WHT
RED
BLU
BLK
WHT
1 2 3 4 5 6
654321
654321
KS22
CN02
BLK
WHT
WHT
RED
BLU
1 2 3 4
4321
4321
KS10
CN01
SICOM2
W
SI-C
W
SI-D
CW THERMISTOR
CN THERMISTOR
1 2 3 4
YEL
YEL
YEL
YEL
1 2 3 4
D-TH
DW THERMISTOR
DN THERMISTOR
1 2 3 4
YEL
YEL
YEL
YEL
1 2 3 4
WHT
WHT
WHT
WHT
TERMINAL
PLATE
1
2
3
BLK
WHT
WHT
SICOM2
62

Table of Contents

Other manuals for Sanyo SAP-KRV246EH

Related product manuals