EasyManua.ls Logo

Scotsman MC 45 - MC-45 Wiring Configuration

Scotsman MC 45
39 pages
Print Icon
To Next Page IconTo Next Page
To Next Page IconTo Next Page
To Previous Page IconTo Previous Page
To Previous Page IconTo Previous Page
Loading...
Page 32
Page 32
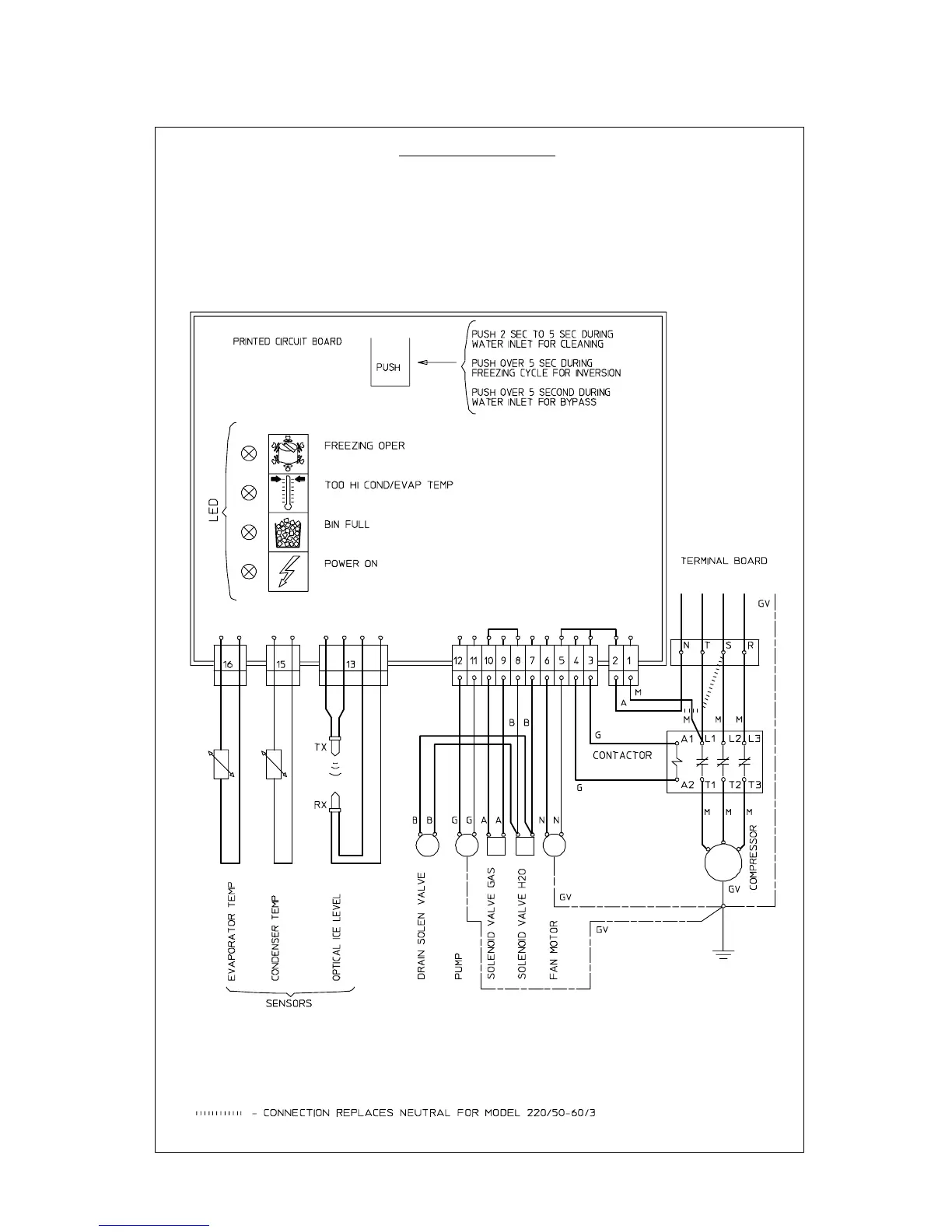
WIRING DIAGRAM
MC-15 A-W
220/50-60/3 - 400/50/3 + N
B - WHITE
G - GREY
N - BLACK
A - BLUE
M - BROWN
GV - YELLOW GREEN

Table of Contents

Related product manuals