EasyManua.ls Logo

Scotsman MF 26 - General Information and Installation; Introduction; Unpacking and Inspection

Scotsman MF 26
41 pages
Print Icon
To Next Page IconTo Next Page
To Next Page IconTo Next Page
To Previous Page IconTo Previous Page
To Previous Page IconTo Previous Page
Loading...
MF 66 AS Air 1150*
MF 66 WS Water 8000*
Basic electr. Amps Watts Nr. of wires Amps fuse
230/50/3 7,1 56 4 x 2.5 mm 25
400/50/3 + N 3,4 28 5 x 2.5 mm 16
3600 80
SPECIFICATIONS
Start Electric power cons.
Amps Kwh per 24 HR
Water req.
lt/24 HR
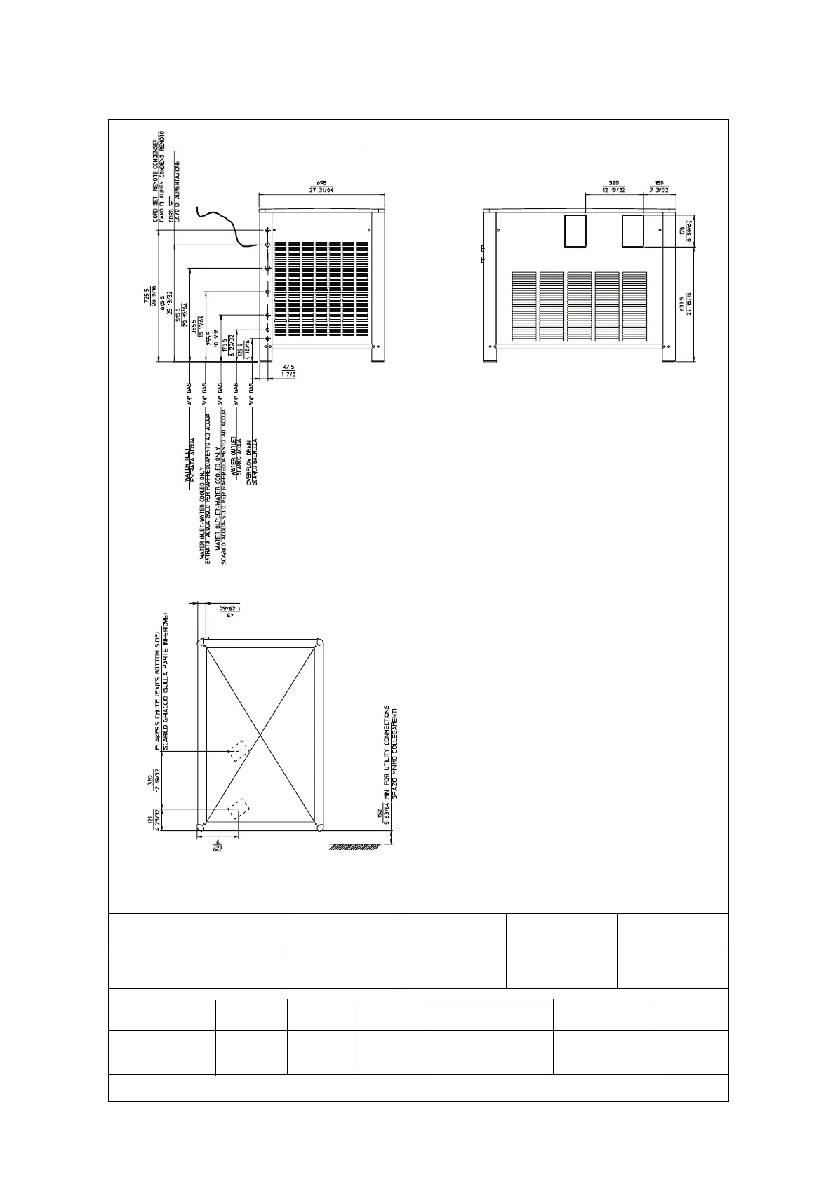
MF 66 - MACHINE SPECIFICATIONS
Dimensions:
HEIGHT 850 mm.
WIDTH 1065 mm.
DEPTH 698 mm.
WEIGHT 179 Kg.
Model
Finish
Cond. unit
Comp. HP
* A 15°C water temperature
S. Steel 2.5
2
2
Page 11

Related product manuals