EasyManua.ls Logo

Scotsman Prodigy Plus D Series - N0922, F1222, N1322, F1522 Cabinet Layout

Scotsman Prodigy Plus D Series
24 pages
Print Icon
To Next Page IconTo Next Page
To Next Page IconTo Next Page
To Previous Page IconTo Previous Page
To Previous Page IconTo Previous Page
Loading...
N0422, F0522, N0622, F0822, N0922, F1222, N1322, F1522
D Series Air, Water or Remote User Manual
December 2014
Page 5
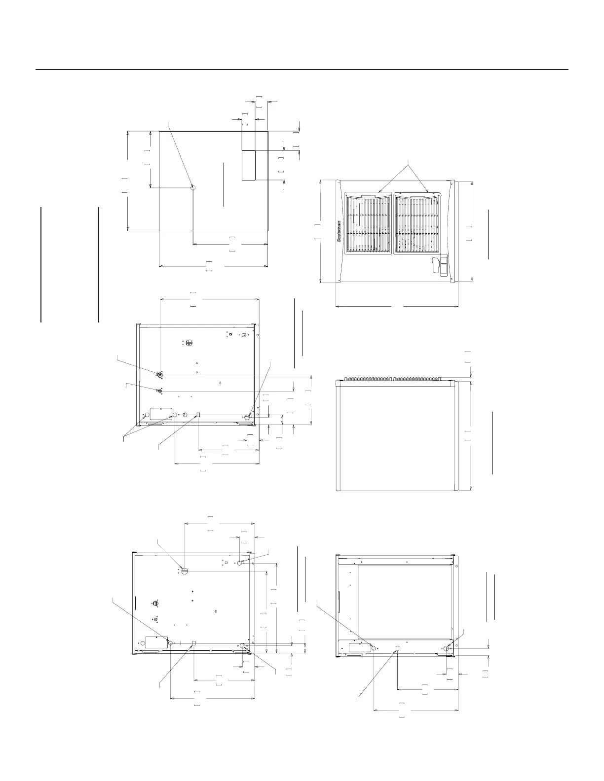
N0922, F1222, N1322, F1522 Cabinet Layout
24.00
REF.
61
22.00
REF.
55.9
2.92
7.4
6.48
16.5
2.81
7.1
4.30
10.9
16.50
41.9
12.50
31.8
27.00
[68.6]
22.00
55.9
22.70
57.7
FRONT VIEW
LOUVER AND
REMOVABLE FILTER
A/C UNITS ONLY
24.00
61
.91
2.3
LEFT SIDE VIEW
2.67
6.8
18.64
47.3
1.59
4
13.39
34
AIR COOLED
BACK VIEW
3/8" FLARE
MACHINE
WATER
INLET
.88 DIA.
ELECTRICAL
ACCESS
3/4" FPT
DRAIN
2.17
5.5
2.67
6.8
18.59
47.2
1.59
4
19.80
50.3
18.05
45.8
3.37
8.6
15.44
39.2
13.39
34
WATER COOLED
BACK VIEW
.88 DIA.
ELECTRICAL
ACCESS
3/8" FLARE
MACHINE
WATER
INLET
3/4" FPT
DRAIN
1/2" FPT
CONDENSER
DRAIN
2.67
6.8
18.59
47.2
1.59
4
2.17
5.5
7.39
18.8
10.93
27.8
21.84
55.5
13.39
34
REMOTE COOLED
BACK VIEW
.88 DIA.
ELECTRICAL
ACCESS
3/8" FLARE
MACHINE
WATER
INLET
3/4" FPT
DRAIN
3/8" FPT
CONDENSER
WATER INLET
REMOTE COND.
LIQUID LINE
3/8" CPLG
REMOTE COND.
DISCHARGE LINE
1/2" CPLG
ULTRA SONIC
BIN LEVEL
SENSOR
OPTIONAL
PLAN VIEW
ICE DROP
OPENING
24.00
REF.
61
22.00
REF.
55.9
2.92
7.4
6.48
16.5
2.81
7.1
4.30
10.9
16.50
41.9
12.50
31.8
Note: Bin Top Cut-outs
for drop zone should
include ultrasonic
sensor location

Related product manuals