EasyManua.ls Logo

Scotsman SCCG50 - Cabinet Layout

Scotsman SCCG50
32 pages
Print Icon
To Next Page IconTo Next Page
To Next Page IconTo Next Page
To Previous Page IconTo Previous Page
To Previous Page IconTo Previous Page
Loading...
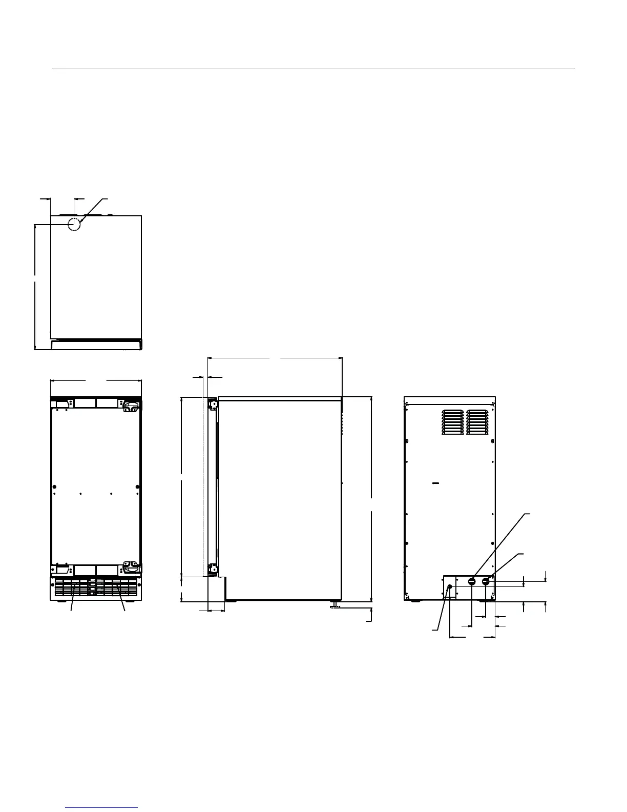
Cabinet Layout
June 2008
Page 3
SCCG50 & SCCP50
Service Manual
14 7/8"
AIR IN
AIR OUT
.75
SHEET METAL DOOR FRONT
.63 MIN. CABINET DOOR
29 1/4"
1"
LEG ADJUSTMENT
(4) PLACES
33 3/8" MIN.
34 3/8" MAX.
22"
2 3/4"
4"
3 3/4"
1 1/2"
2 1/2"
3 1/4"
7 3/8"
115 V
POWER CORD
DRAIN
FLEXIBLE TUBING
3/8 I.D. PUMP MODEL (INCLUDED)
5/8 I.D. GRAVITY MODEL (NOT INCLUDED)
POTABLE WATER INLET
1/4" COMPRESSION FITTING
3 7/8"
20 3/8"
FLOOR DRAIN
ACCESS HOLE

Other manuals for Scotsman SCCG50

Related product manuals