EasyManua.ls Logo

SDS CPi-2 - Page 3

Default Icon
29 pages
Print Icon
To Next Page IconTo Next Page
To Next Page IconTo Next Page
To Previous Page IconTo Previous Page
To Previous Page IconTo Previous Page
Loading...
3
Part 2 Component mounting and wiring
ECU Mounting
The gold ecu should be mounted in the interior of the aircraft, not in the engine bay. The ecu is not waterproof and
should not get water inside. If possible, mount the ecu with the connectors facing downward, so that if water runs
through the firewall and down the wiring it will drip off at the lowest point where the wiring turns upward to enter the
ecu. Ecu height dimensions, Single board 1.085”, Dual board 1.785”. Note that the ecu has fuses on one side of it
so mounting so the fuses are accessible is wise.
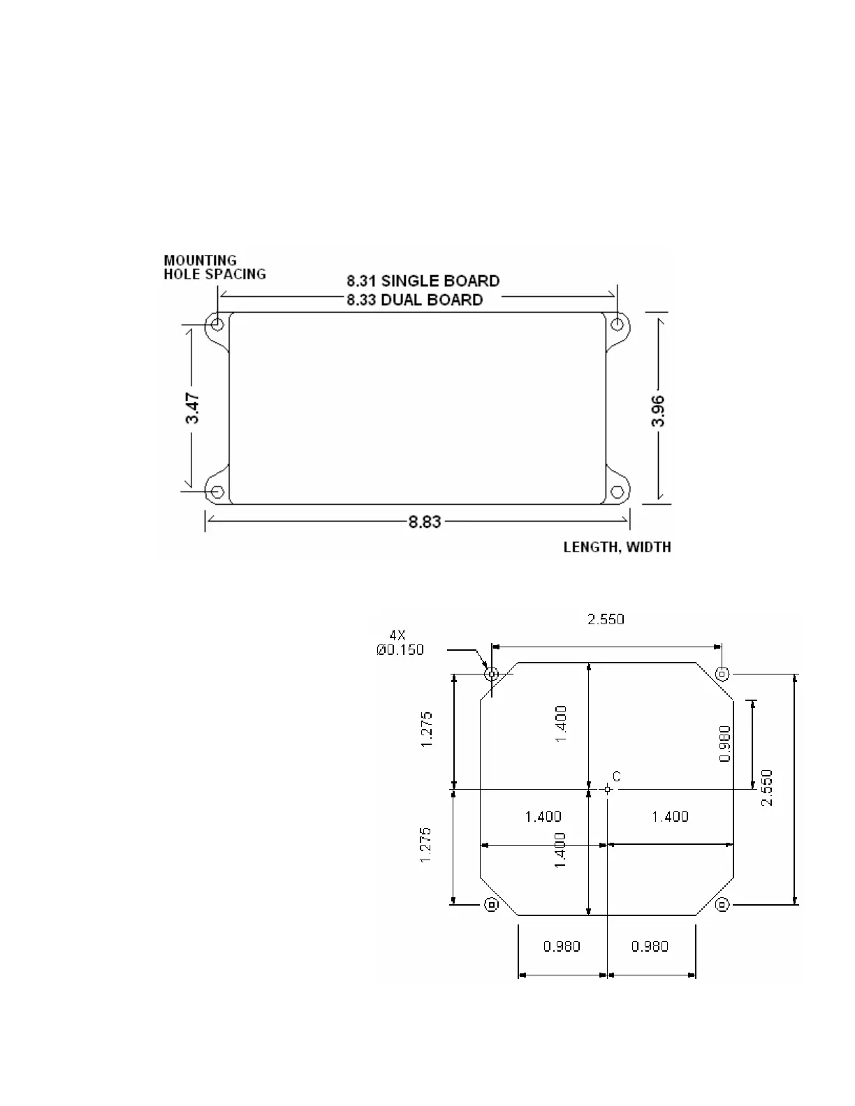
CPi-2 ecu dimensions:
Programmer mounting
Mount this in a visible area on the panel. Its is
important to be able to view the programmer in
the event that there is a problem in the system.
The LCD display is rated as sunlight readable,
but it would still be better to have the screen
shaded if possible to aid in viewing. Note the
programmer has a chassis ground wire on the
rear, please connect this to protect the
programmer from static discharge. Damage
could result without the programmer body
being grounded. Allow 3.75” rear clearance
from the back surface of your panel for the
cable exiting the rear of the programmer.
Cable exits the rear about 3/8” above the rear
center of the programmer unit.
Programmer panel cutout
dimensions. These are exact dimensions
of the programmer so add .010 to.020” around
the octagonal cutout for some clearance.