EasyManua.ls Logo

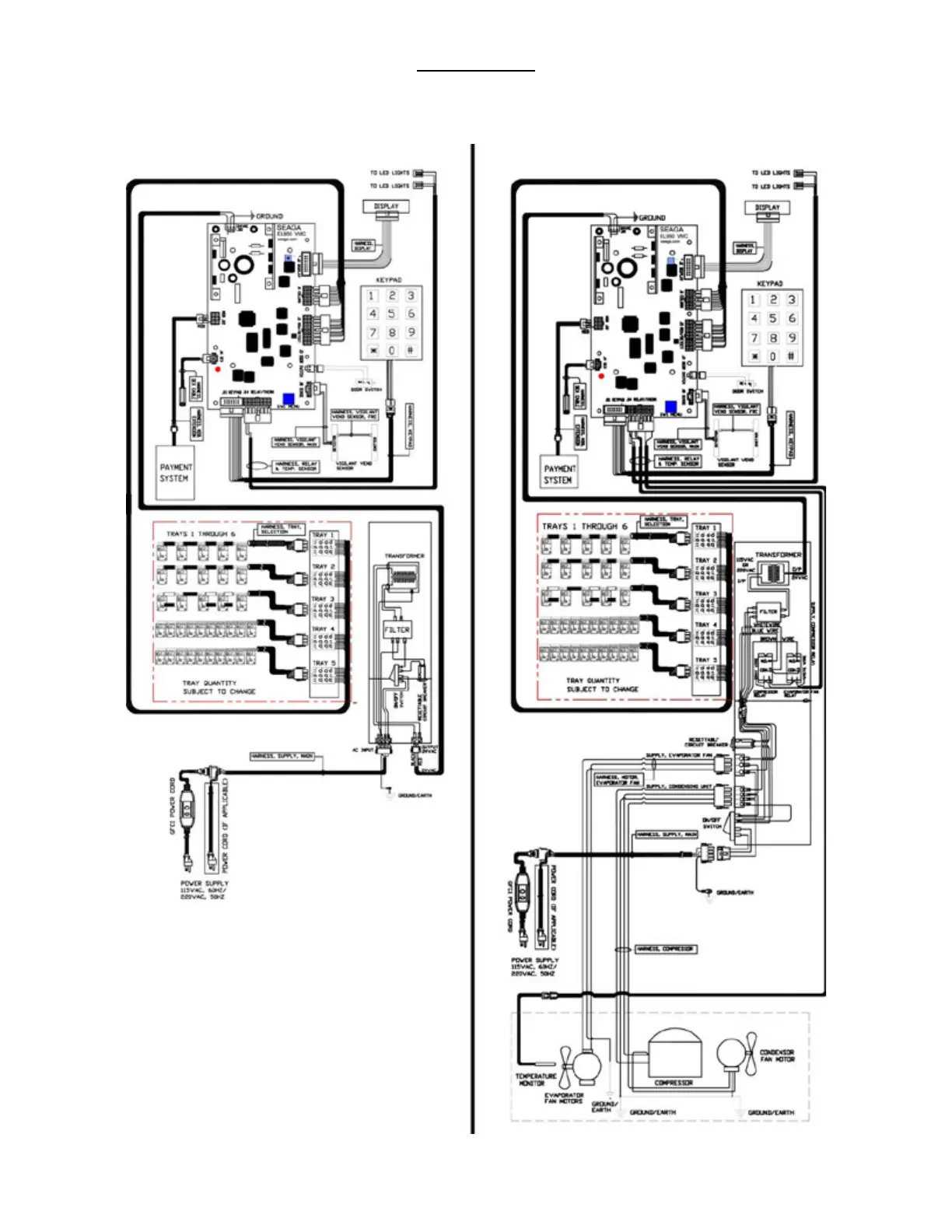
Seaga INF5C - Wiring Diagrams

Seaga INF5C
77 pages
Print Icon
To Next Page IconTo Next Page
To Next Page IconTo Next Page
To Previous Page IconTo Previous Page
To Previous Page IconTo Previous Page
Loading...
57Revision 2.EL950 1.3.1074C 18.6



Related product manuals