EasyManua.ls Logo

Seagate ST5000LM000 - Drive Mounting

Seagate ST5000LM000
30 pages
Print Icon
To Next Page IconTo Next Page
To Next Page IconTo Next Page
To Previous Page IconTo Previous Page
To Previous Page IconTo Previous Page
Loading...
Seagate BarraCuda Product Manual, Rev. E (Draft 2) 18
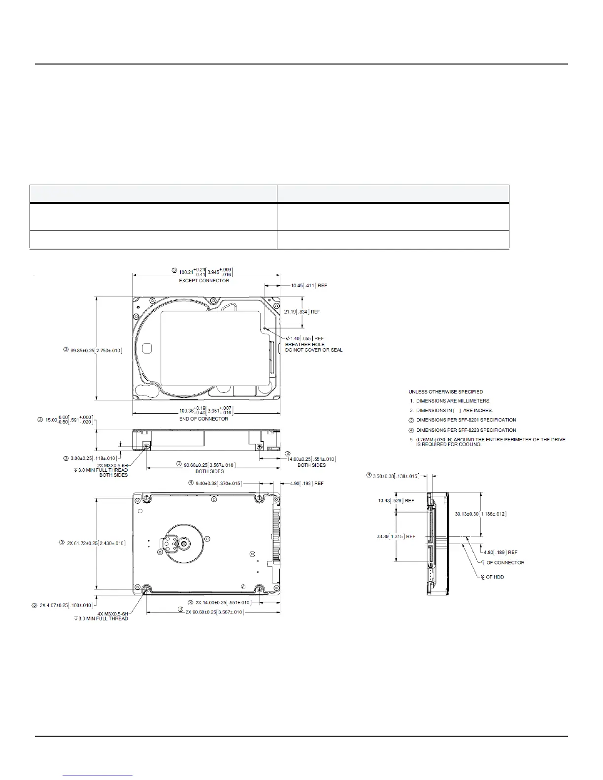
3.3 Drive Mounting
Users can mount the drive in any orientation using four screws in the side-mounting holes or four screws in the bottom-mounting holes. Refer to2
and Figure 2 for drive mounting dimensions. Follow these important mounting precautions when mounting the drive:
Allow a minimum clearance of 0.030 in (0.76 mm) around the entire perimeter of the drive for cooling.
Use only M3 x 0.5 mounting screws.
Do not overtighten the mounting screws. Maximum torque: 4.0 in-lb (0.4519 N-m).
Four (4) threads (0.080 in, 2.032 mm) minimum screw engagement recommended.
Avoid excessive drive distortion when mounting. Refer to the following specifications for stiffness/deflection information:
Figure 2 Mounting Dimensions (for 1-disk models)
Top cover stiffness/deflection
Operating: no performance degradation, emitted noise,
mechanical damage, or hard errors
10 mm probe: 2.0kgf (typical)
Non-operating: no hard errors 10 mm probe: maximum 2.0kgf (instantaneous)

Related product manuals