EasyManua.ls Logo

Sedgwick 571 - Page 8

Sedgwick 571
19 pages
Print Icon
To Next Page IconTo Next Page
To Next Page IconTo Next Page
To Previous Page IconTo Previous Page
To Previous Page IconTo Previous Page
Loading...
571 Operation/Maintenance Instructions Page 8 of 19
You must ensure that there is an ample power supply available to operate the machine,
together with good lighting and ventilation. Do not operate or store the machine outdoors.
Ensure the environment for operating woodworking machinery is kept clean and tidy and damp-
free. Only operate the machine in ambient temperatures.
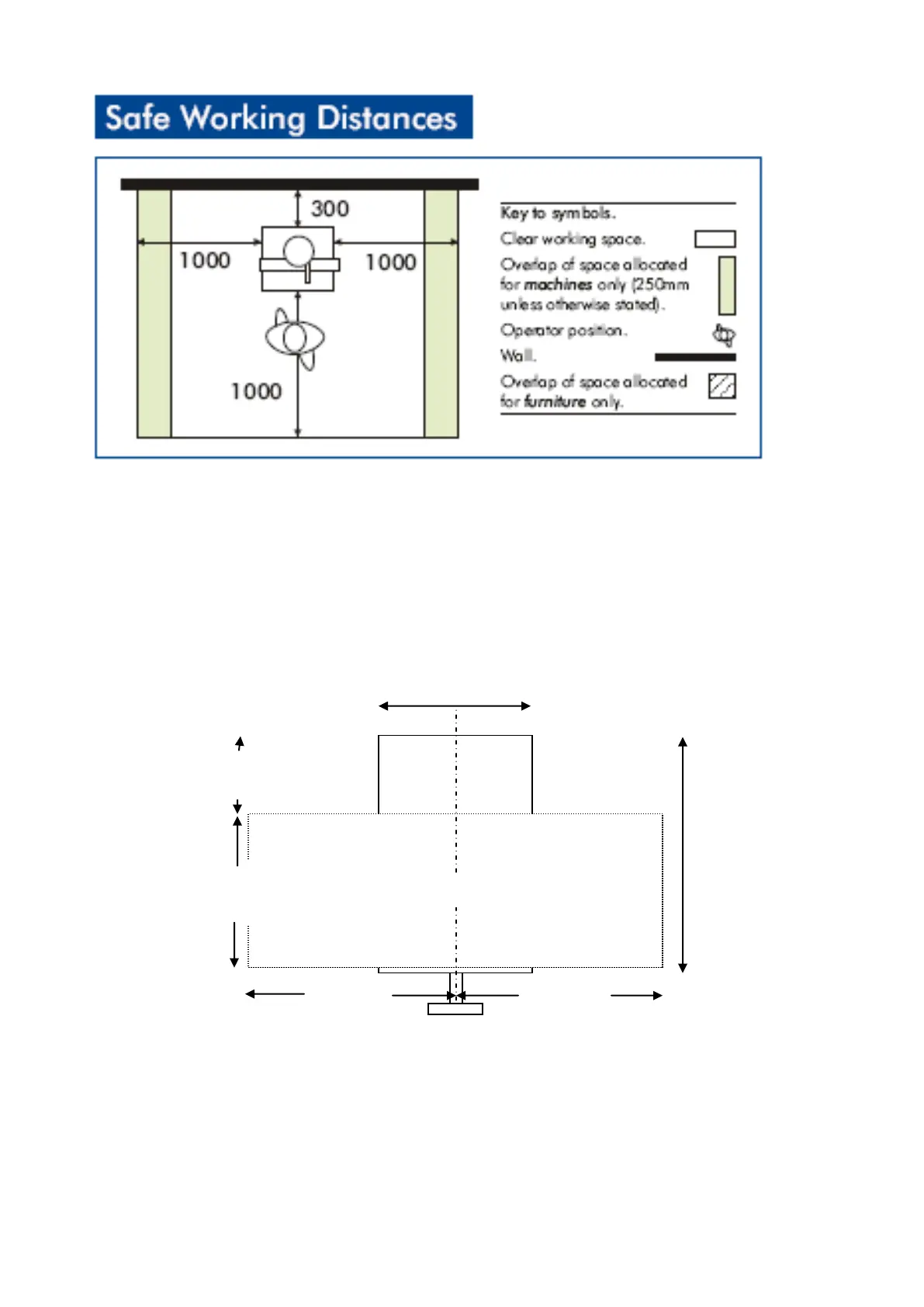
The chosen floor space on which to site the machine should be in good and level condition to
enable the machine to be anchored at four points. Holes for M10 foundation bolts (not supplied)
are provided in the machine base. Level the tabletop by packing under the feet of the base as
required. The following drawing shows a lay-out of the anchor openings:
340mm
440mm
160mm
310mm
215mm
215mm
Table Movement