EasyManua.ls Logo

Seitron TDST24M - Control Logic; Control Logic in ABC; Control Logic of the Safety Thermostats

Seitron TDST24M
24 pages
Print Icon
To Next Page IconTo Next Page
To Next Page IconTo Next Page
To Previous Page IconTo Previous Page
To Previous Page IconTo Previous Page
Loading...
8
TDST24M000SE 032635 190619
Note: in the ‘ installer parameters ‘ mode all the outputs
are disabled. All default values are to be considered
as indicative, being they subject to changes due to
the version and without prior notice.
P1: SELECTION INSTALLATION TYPE
Pressing the ‘ or ‘ ‘ keys will show all the installations
that can be set up (if the probe for the selected installation
has a problem or is left unconnected, that probe will ash
on the display).
To conrm the selected installation press the ‘ ‘ key; the
control unit will memorize the choice and the display will
again show the parameter list.
To cancel the selection, press the ‘ esc ’ key. In this case the
control unit will abandon the changes made and will show
again the parameter list.
The parameters inuencing the regulation of the selected
setup are listed in the following and can be modied through
the second installer parameter (P2).
Note: When going into parameter P1, the controller
will reset the maximum temperatures (MT) detected
until that moment. Furthermore, when quitting this
parameter, the controller will set again the temperature
display on the sensor S_1.
List of programmable thermal parameters (optional):
Parameters Description
TS1-TS2-TS3 Probe safety temperature
∆T 12 Differential between the probes S1-S2
MTC
Adjustment of collector minimum
temperature
MTEN
Enabling/disabling the collector minimum
temperature
TM3 Maximum temperature of the probe S3
TAH Integration temperature on the probe S3
HY12 Hysteresis of ∆T 12
HYT Thermostatic hysteresis
HYTS Safety thermostatic hysteresis
WARNING!
The thermal parameters to be set are displayed when
the relevant scheme is selected, this means the power
unit will only display the thermal parameters actually
activated for the selected hydraulic scheme.
CONTROL LOGIC
WARNING: The following control logics must be applied
to all the diagram described hereinafter.
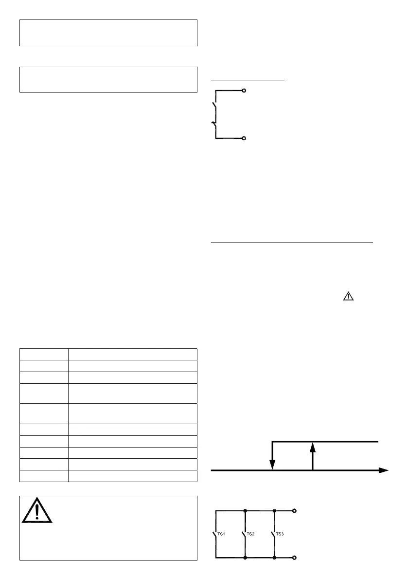
ALARM RELAY
OFF
HYSTE-
RESYS
TS-
ALARM RELAY
ON
°C
ALR RELAY
Control logic
CONTROL LOGIC IN ABC
The control logic of the ‘ABC’ function actually replaces the
differential control.
The checks on the Maximum and Safety temperatures are
always kept active.
The integrative source is switched off when ABC mode is
active.
Once ABC mode is turned off the integrative source will be
automatically activated.
CONTROL LOGIC OF THE SAFETY THERMOSTATS
If an alarm turns on because of an overcoming of the safety
temperature, the alarm relay will be activated.
While the loads outputs will keep on functioning according
to the relative logics.
In this conditions, the control unit emits a beeping audio
signal and on the display will ash the icon “ ”.
The control is not active with the control unit in “OFF” mode
(the display shows the message OFF).
Condition for the alarm relay activation
The logic of the functioning of the alarm relay , always
present in every diagram selected, runs with the following
conditions:
TX- ≥ TS- = Alarm relay ON
TX- ≤ (TS- – hysteresys) = Alarm relay OFF
Where:
TX-: Temperature picked up by the connected sensors
(S1 .. S3).
TS-: Safety temperature related to the sensors (S1 .. S3).
ABC
MANUALE
T/ABC
IN PARALLELO AL CONTROLLO DEL T
/10
ABC
MANUAL
E
T/ABC
IN PARALLELO AL CONTROLLO DEL T
/10
PRESS THE ‘ esc ’ KEY TO RETURN TO THE INSTALLER
PARAMETERS SELECTION.
WAIT 20 SECONDS OR PRESS THE ‘ esc ’ KEY TO EXIT
THE INSTALLER MODE.