EasyManua.ls Logo

SEVERIN KGK 8913 - Transport Van Het Apparaat; Voor Het Eerste Gebruik; Het Plaatsen Van Het Apparaat

SEVERIN KGK 8913
Print Icon
To Next Page IconTo Next Page
To Next Page IconTo Next Page
To Previous Page IconTo Previous Page
To Previous Page IconTo Previous Page
Loading...
- 49 -
Transport van het apparaat
• Tijdens het transport moeten alle bewegende de-
len in en aan het apparaat betrouwbaar worden
bevestigd om beschadigingen te voorkomen.
• Het apparaat moet in verticale werkstand wor-
den getransporteerd en mag niet meer dan 30°
worden gekanteld. Wacht na het plaatsen 30
minuten voordat u het apparaat op het stroom-
net aansluit.
• Als u het apparaat onder een hoek van meer dan
30° hebt getransporteerd, moet u 4 uur wachten
voordat u het op het stroomnet aansluit.
Voor het eerste gebruik
• Verwijder de beschermfolie en al het verpak-
kingsmateriaal incl. de transportbeschermingen
van de opslagvlakken en de planken van het
apparaat.
• Zorg voor een milieuvriendelijke verwijdering van
het verpakkingsmateriaal.
• Wanneer u het apparaat voor het eerst inschakelt
ruikt het apparaat misschien ´nieuw´. Deze geur
verdwijnt zodra het apparaat met het koelen
begint.
• Reinig de binnenruimte met lauwwarm water
met toevoeging van een afwasmiddel. Reinig
de accessoires apart in spoelwater, niet in de
vaatwasser.
• Laat het apparaat 24 uur werken voordat het
met levensmiddelen wordt gevuld, zodat de
gewenste temperatuur kan worden bereikt.
Het plaatsen van het apparaat
• Het apparaat dient in een droge en goed geventi-
leerde ruimte te worden geplaatst.
• Het apparaat kan bij een luchtvochtigheid van
max. 70 % worden gebruikt.
• De omgevingstemperatuur waarbij het apparaat
kan worden gebruikt, vindt u op het productinfor-
matieblad aan het einde van deze handleiding.
• Plaats het apparaat niet buiten.
• Zorg ervoor dat de stekker altijd uit het stopcon-
tact kan worden getrokken.
• Bescherm het apparaat tegen direct zonlicht. Hij
mag niet in de buurt van warmtebronnen (oven,
radiator, enz.) worden geplaatst. Wanneer dit
niet kan worden vermeden, moet er een isolatie
tussen warmtebron en apparaat worden
geplaatst.
• Het apparaat mag niet in een kast worden
ingebouwd. De montage van het apparaat direct
onder een plank of een
kast is niet toegestaan.
• Een oneffen vloer-
oppervlak kan met
de twee in hoogte
verstelbare pootjes aan
de voorkant worden
opgeheven om stabili-
teit te garanderen.
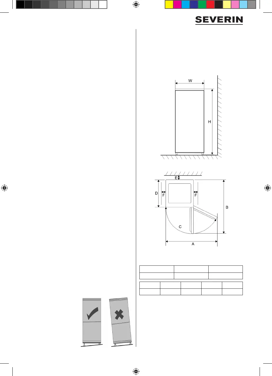
Installatieafmetingen
Als het apparaat aan de zijkant van een wand
wordt geplaatst, moet u een zijdelingse afstand van
ten minste 60 mm aanhouden, zodat de deuren
van het apparaat 90° kunnen worden geopend. Om
de VeggiBox & ZeroBox volledig uit het apparaat
te kunnen nemen, verwijdert u indien nodig het
essenrek.
KGK 8913 | 8914 | 8915
Breedte (W) Diepte (D) Hoogte (H)
545 mm 590 mm 1800 mm
A B C E F
900 mm 1080 mm 125° 30 mm 300 mm
8913_14_15_multi_(originates_from_8941_42_45_46).indd 49 24.09.2018 11:27:55

Related product manuals