EasyManua.ls Logo

Shark 50 - Page 52

Shark 50
194 pages
Print Icon
To Next Page IconTo Next Page
To Next Page IconTo Next Page
To Previous Page IconTo Previous Page
To Previous Page IconTo Previous Page
Loading...
Doc# E145701 3 - 2
3: Mechanical Installation
Electro Industries/GaugeTech
The Leader In Power Monitoring and Smart Grid Solutions
Electro Industries/GaugeTech
The Leader In Power Monitoring and Smart Grid Solutions
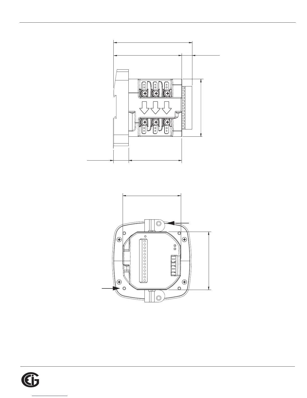
Figure 3.3: Transducer Side
Figure 3.4: Meter Back
5.02”
[12.75cm]
3.25”
[8.26cm]
Ic Ib Ia
HI HI HI
LO LO LO
3.52”
[ 8.90cm]
0.62”
[1.61cm]
[12.10cm]
4.78"
[2.31cm]
0.91"
4.16”
[10.60cm]
v
;CM=
v
;CM=
ANSI Mounting Rods
(Screw-in) Qty: 4
DIN Brackets
Qty: 2

Table of Contents

Related product manuals