EasyManua.ls Logo

Sharp CD-C1W - Page 40

Sharp CD-C1W
72 pages
Print Icon
To Next Page IconTo Next Page
To Next Page IconTo Next Page
To Previous Page IconTo Previous Page
To Previous Page IconTo Previous Page
Loading...
CD-C1W,CP-C1W
– 40 –
A
B
C
D
E
F
G
H
1
23456
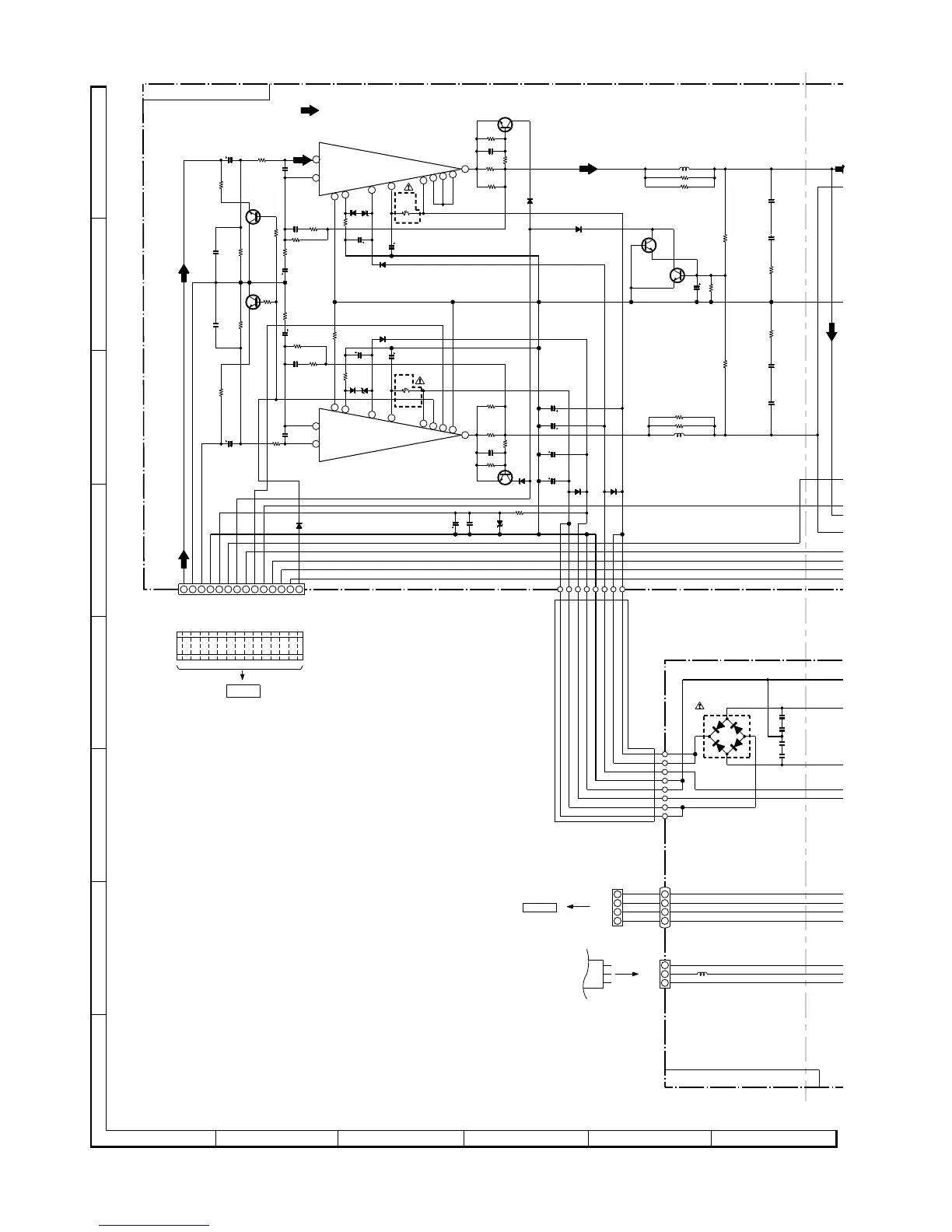
Figure 40 SCHEMATIC DIAGRAM (14/15)
NOTES ON SCHEMATIC DIAGRAM can be found on page 36.
CFW903
WT853
CNS851 BI851
C910
470P
C909
470P
ZD903
MTZJ8.2C
ZD904
MTZJ8.2C
R923
0.2
L851
100µH (DH)
D993
1SS133
R968
22K
R967
22K
R927
4.7
(1/2W)
C921
0.1
(ML)
R928
4.7
(1/2W)
C922
0.1
(ML)
R969
10K
Q905
KTC3199 GR
MUTE
C908
2.2/50
R970
10K
Q906
KTC3199 GR
MUTE
R910
1K
R979
33K
R994
100
R993
100
(1/2W)
C917
0.022
(ML)
C918
0.022
(ML)
D907
1N4004S
C865 0.047 (ML)
C852 0.047 (ML)
C866 0.047 (ML)
C851 0.047 (ML)
D851
BR102J02
D908
1N4004S
D906
1N5402M
D905
1N5402M
C984
10/50
C983
10/50
R987
3.3K
R988
3.3K
C992
47/100
C991
47/100
C986
4700/35
C985
4700/35
C995
3300/71
C996
3300/71
R985
820
Q997
KTC3199 GR
Q998
KTC3199 GR
Q903
KTC3200 GR
Q904
KTC3200 GR
R907
56K
R990
10 (1/2W)
R992
10
(1/2W)
R991 10
R989 10
R924
0.2
R922
0.2
R921
0.2
R940
1.5K
R939
1.5K
R925
56K
R916
1K
R915
1K
R913
270
R912
56K
R911
56K
R908
56K
D909
1SS133
D910
1SS133
C923
0.1
(ML)
C924
0.1
(ML)
C914
15P
C913
15P
C912
47P
C911
47P
ZD901
MTZJ15A
C989
220/25
R909
1K
C907
2.2/50
C990
0.022
L902
0.29µH
L901
0.29µH
C997
47/50
R998
56K
R926
56K
D902
1SS133
R920
2.2K
C936
47/50
R914
270
C935
47/50
D998
1SS133
D901
1SS133
R919
2.2K
IC901 (1/2)
STK41713
POWER AMP.
98
7
6
5
14 13
12
11
10
4321
44
3
33
2
22
1
11
21
20
16
13
12
15
22
3
9
2
5
6
7
4
8
1
19
17
10
11
14
18
–VH
+VH
+VL
–VL
(1/2W)
Fusible
Fusible
RELAY
VF2
–VP
VF1
FAN CONT
POSISTOR
L-CH
R-CH
VOL SW
SP DET
+12V(M)
H/P SW
GND(M)
PROT
RELAY
–15V
GND
GND(A)
+B
GND
GND
IC901 (2/2)
STK41713
POWER AMP.
+B
–B
+B
+B
+B
–B
–B
+B
81
POWER SUPPLY PWB-C2
POWER AMP. PWB-C1
FM SIGNAL
CFW852
P27 12-D
TO MAIN PWB
FW903
14
14
1
1
FROM
DISPLAY PWB
P36 1-B
CNP851
P27 12-F
TO MAIN PWB
+B
FW904
8
1
–B
–B
+B
+B
+B
–B
(1/2W)
(1/2W)
–B
0V
0V
0V
0V
0V
0V
0V
0V
0V
0V
0V
0V
0V
0V
0V
0V
0V
0V
0V
3.8V
3.8V
3.8V
0V
0V
18.3V
26.4V
55.3V
57.0V
-25.7V
-25.7V
-25.7V
0V
0V
0V
-57.0V
-55.3V
-26.3V
-18.3V
-54.1V
3.8V
–B
FW853

Related product manuals