EasyManua.ls Logo

Sharp CD-C421H - Page 28

Sharp CD-C421H
51 pages
Print Icon
To Next Page IconTo Next Page
To Next Page IconTo Next Page
To Previous Page IconTo Previous Page
To Previous Page IconTo Previous Page
Loading...
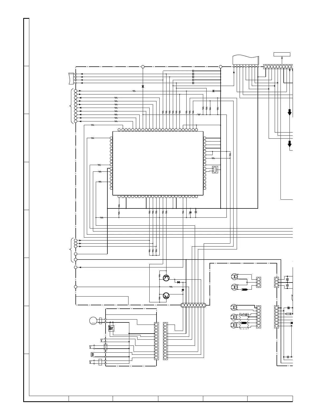
CD-C421H / C411H
– 28 –
Figure 28 SCHEMATIC DIAGRAM (2/11)
A
B
C
D
E
F
G
H
1
23456
TO TUNER PWB
P37 9-G
CNS303
CNS502
CNS501
CNP502
CNP501
Q511
2SC1845 F
C502
0.001
C512
180P
R581
10K
C501
0.001
C511
180P
1
1
7
6
5
4
3
2
7
6
5
4
3
2
1
3
2
3
2
1
IC601
IX0225AW
MAIN SYSTEM MICROCOMPUTER
CNS601
PHM1
RUN PALS
SENSOR
FWM2
CNPM2
SWM3
F.P.
SWM5
CAM
SOLM1
SOLENOID
8
7
6
5
4321
1
2
3
4
5
6
7
8
9
10
11
12
10
11
12
1
2
3
4
5
6
7
8
9
CNPM1
MM1
TAPE MOTOR
CNSM1
Q601
KTA1273Y
Q602
2SB561 C
23
20
27
28
24
25
26
22
21
29
B
8
10
A
11
4
32
31
30
ERASE HEAD
BIAS
T1_T2
CLK
CLK
DO
DO
CE
DI
CE
DI
SD
SM
A+12V
A_GND
D_GND
TUN_MUTE
TUN_MUTE
REC
REC/P.B
TAPE2_L2
TAPE2_L1
TAPE2_R1
TAPE2_R2
ERASE
M_GND
A_GND
A_GND
TAPE1_L
TAPE1_R
L-CH
R-CH
L-CH
R-CH
TAPE1
PLAYBACK
HEAD
TAPE2
RECORD/
PLAYBACK HEAD
TUN_R
TUN_L
TO DISPLAY PWB
P35 7-A
R638
10K
R631
100K
R630
3.3K
R621
1K
R601
100K
C601
0.022
R604
10K
C609
47/16
R644
1.2K
D601
1SS133
R643
10K
R642
10K
R641 10K
R640
10K
R639
10K
R627
1K
R602
10K
XL601
4.19MHZ
+B
+B
R635 1K
R636 1K
R615 1K
C608
0.022
R633 1K
R622
1K
R634 1K
R632 1K
R637 1K
R605 1K
R612 1K
R606 1K
C606 150P
R620 1K
R619 1K
R614 1K
R613 1K
C602 150P
R623 1K
R616 1K
C604 150P
C603 150P
R608 1K
R611 1K
R607 1K
R609 1K
R618 1K
R603 1K
R610 1K
C605 150P
C607
220/10
D602
1SS133
R617 1K
R625
12K
R624
1K
+12V (MECHA)
DISC_NO
MECHA_UP/DN
DRF
CD_OPEN/CLOSE
MAIN_STB
POWER_CONT
PUIN
GND
DSP_RES
SL–
SL+
CQCK
COIN
SQOUT
WRQ
RWC
MAIN_STB
CLEAR
MAIN_SI
MAIN_SO
MAIN_SCK
MAIN_SI
MAIN_SO
MAIN_SCK
CLEAR
+5.6V
REC/P.B.
REC MUTE
CD DRF
CD PUIN
CD SL+
CD SL–
CD RES
CD SQOUT
CD COIN
CD CQCK
VDD
CD RWC
CD WRQ
TACUM SW
T2 RUN
T1 RUN
TA MOT SW
TA SOL
VSS
U/D SW
D.NO. SW
O/C SW
VDD
POWER_CONT
VLOAD
P33
P12
P10
AVDD
AVREF
P04/XT1
P74
P73
AVSS
RESET
P26
P25
P24
P23
P126
X1
P124
P125
P17
P16
P15
P14
P101
P103
P102
P100
P31
P30
P03
P113
P112
P110
P106
P116
P117
P114
P115
P105
P104
P02
P71
P70
P21
P20
P00
P01
P122
P123
P91
P92
P93
P94
P22
VDD
P72
IC
XT2
VSS
X2
P37
P36
P35
P34
P32
GND
P11
P90
VDD
P27
P80
P81
P120
P121
P107
P111
T1/T2
BIAS
P13
P127
P97
P96
P95
R629
10K
R628
10K
R626
1K
T2 AFP
1234
5
6
7
8
9
10 11 12 13 14 15 16 17 18 19 20 21 22 23 24
80
79
78
25
26
27
28
29
30
31
32
33
34
35
36
37
38
39
40
41
42
43
44
45
46
47
48
49
50
51
52
5354
55
56
57
58
59
60
61
6263
64
65
66
67
68
69
70
71
72
73
74
75
76
77
TAPE MECHANISM PWB-D
31
24
FWM1
SWM4
F.A.S
2+
MECHA STOP
SOLENOID
T1 RUNPALS
FOOL PROOF
T2 RUNPALS
+B
GND
MOTOR
MECHA STOP
SOLENOIDO
T1 RUN
FOOL PROOF
T2 RUN
+B
GND
MOTOR
M
MAIN PWB-A1(1/3)
1
0
987654321
987654321
D_GND
4
3
2
1
M_GND
L601
100µH
TO MAIN PWB(2/3)
CD SECTION
P31 7-G
TO MAIN PWB(2/3)
CD SECTION
P31 9-G,12-E
TO MAIN PWB(3/3)
POWER AMP.
SECTION
P32 2-G
TO MAIN PWB(3/3)
POWER AMP.
SECTION
P32 2-D
TO DISPLAY PWB
P35 8-H
CNP303
FW702
FW703
TO MAIN PWB(3/3)
POWER AMP.
SECTION
P32 2-F
TO MAIN PWB(3/3)
POWER AMP.SECTION
P32 2-F
• NOTES ON SCHEMATIC DIAGRAM can be found on page 16.

Related product manuals