EasyManua.ls Logo

Sharp CD-MPS1000 - Page 57

Sharp CD-MPS1000
100 pages
Print Icon
To Next Page IconTo Next Page
To Next Page IconTo Next Page
To Previous Page IconTo Previous Page
To Previous Page IconTo Previous Page
Loading...
CD-MPS1000
6 – 2
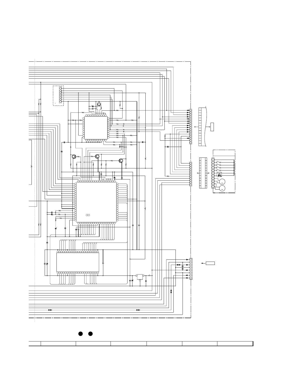
Figure 6-2 SCHEMATIC DIAGRAM (2/10)
2V
5V
5V
3.3V
5V
3.3V
MP3-DEODER
D-RAM
P6-5 1-A
CNS601
FROM MAIN PWB
10K
270
33K
0.01
0.001
0.001
4.7K
4.7K
4.7K
4.7K
4.7K
0.01
4.7K
1K
1K
1K
1K
1K
1K
1K
1K
1K
1K
2.2K
2.2K
2.2K
2SD601 AR
0.1
47/10
0.022
3.3
0.1
1K
4.7K
0.01
2.2K
2.2K
4.7K 4.7K
100/10
LC78683E
60
59
58
57
56
55
54
53
52
51
50
49
48
47
46
45
44
43
42
41
20
19
18
17
16
15
14
13
11
12
10
9
8
7
6
5
4
3
2
1
150
82
0.1
47/10
33P
(CH)
47/10
0.01
47/25
47/10
220
0.1
100K
0.01
0.022
2.2K
2SD601 AR
2SD601 AR
1K
2.2K
4.7K
4.7K
L8316V35
2.2K
1/50
0.01
3.3K
33P(CH)
0.01
44
43
42
41
40
39
38
37
36
35
34
33
32
31
30
29
28
27
26
25
24
23
123456789
10 11 12 13 14 15 16 222120191817
21 22 23
21
2
2
24 25 26 27 28 29 30 31 32 33 34 35 36 37 38 39 40
72 71 70 69 68 67 66 65 64 63 62 6180 79 78 77 76 75 74 73
12
11
34
5
6
7
8
9
10
12
13
14
15
16
17
18
19
20
21
22
2324252627282930313233
35
34
36
37
38
39
40
41
42
43
44
IXA006AW
MDATA13
CASLB
ADRS5
MDATA7
MDATA6
MDATA5
MDATA4
CASUB
ADRS0
RASB
WEB
ADRS3
ADRS7
MDATA15
OEB
MDATA14
OEB
MDATA9
ADRS8
ADRS7
ADRS6
ADRS5
ADRS1
MDATA15
MDATA14
MDATA13
MDATA12
MDATA11
MDATA10
MDATA9
MDATA8
WEB
MDATA2
MDATA1
ADRS4
MDATA10
ADRS2
MDATA11
MDATA7
MDATA6
MDATA5
MDATA4
MDATA3
MDATA2
ADRS4
ADRS3
ADRS6
MDATA8
CASLB
CASUB
ADRS8
MDATA12
RASB
ADRS0
ADRS1
ADRS2
MDATA1
MDATA0
MDATA3
MDATA0
CLAMP
DISC
SUB_CE
WRQ
DRF
CE
DO
DI
CL
GND
TRAY SW2
TRAY SW1
CD RES
PHOTO
+5V
GND
TRAY SW2
TRAY SW1
CLAMP
DISC
PHOTO
+5V
CAM+
CAM-
TR+
TR-
2
13
RES
VPP
+5V
FCLK
FDO
FDI
GND
DVDD3
2.0V
MP3 CL
MP3 CE
MP3
MP3
FLASH
FOR
ONLY
+8V
+B
+B+B
+B
+B
+B+B
+B
+B
+B
+B
+B
+B
B
+B
+B
+B
+B
+B
+B
+B
+B
+B
+B
+B
+B
+
B
+B
+B
+B
AVSS
DGND_DRIVER
TPTPTP
TP
AVREF
AVDD
VSS
FDO
FCLK
FSYNC
VDD
VSS
X1
X2
RESET
ICO
CDEMPH
MP3-RES
SYS-DI
SYS-DO
VDD
SYS-CL
SYS-CE
INTB
DI
DO
CL
CE
FSYNC
DATACK
DATAIN
RESB
INTB
CMDIN
CMDOUT
OVF
CNTOK
WOK
VSS
DVDD6
CRCF
STDAT
STCK
STREQ
VSS
DVDD6
VSS
DVDD4
VSS
VSS
DVDD2
AVSS
VPDO
VCOC
VPRFR
AVDD1
SBCK
SFSY
SBSY
PW
DVDD1
TEST2
CKOUT
VSS
CKIN(16M)
TEST1
C2FIN
ADLRCK
ADBCK
ADDATA
LRSY
VSS
VSS
DCASLB
DCASUB
DOEB
ADRS8
ADRS7
ADRS6
ADRS5
ADRS4
VSS
VCC
ADRS3
ADRS2
ADRS1
ADRS0
DRASB
DWEB
VCC
VCC
+5V(ANL)
+5V(DIG.)
DGND
L-CH
AGND
R-CH
11
01
9
8
7
1
2
3
4
5
6
6
14
7
01
5
2
1
5
1
1
6
1
3
4
11
8
3
1
9
2
7
1
2
3
4
5
6
2.2H
0.82H
4.19MHz
2.2H
5
6
7
8
4
3
2
1
R17 R10
CNP4
R71
R76
C50
C51
XL2
R75
R74
R68
R73
R69
R72
R67
R66
R77
R64
R78
R65
R63
R61
R62
R60
IC5
IC5
IXA006AW
SUB
MICROCOMPUTER
R22
Q4
R20
R84
R89
R87
C70
R21
R79
Q5
R52
R86
Q3
C68
C69
C44
R83
R80
R82
C63
R81
C42
C29
C64
C65
C66
IC4
C59
C58
C10
C39
IC6
SI3033LUS
3.3V
REGULATOR
C14
C13
FJ1
C48
C76
CNP2
CNP6
R98
CNP5
R97
RM1
C71
L2
L3
C53
C75
IC3
R70
C47
0.022
C85
R59
R85
L1
0.022
C84
M
M
11
1
1
1
2
3
4
5
6
7
8
9
10
11
11
1
16
+
+
-
-
TRAY
MOTOR
MAIN CAM
MOTOR
5-CHANGER
MOTOR PWB-E
CNP704
P6-4 11-C
TO DISPLAY PWB
CNP6A
SW4 DISC
SW1 CLAMP
SW2 TRAY SW1
SW3 TRAY SW2
RX1
M1
M2
FFC4
FFC704
The number 1 to 12 are waveform number shown in page 5-2.
7
8 9 10 11 12

Related product manuals