EasyManua.ls Logo

Sharp DV-NC65S - Page 6

Sharp DV-NC65S
113 pages
Print Icon
To Next Page IconTo Next Page
To Next Page IconTo Next Page
To Previous Page IconTo Previous Page
To Previous Page IconTo Previous Page
Loading...
6
DV-NC65H/S
DV-NC70H
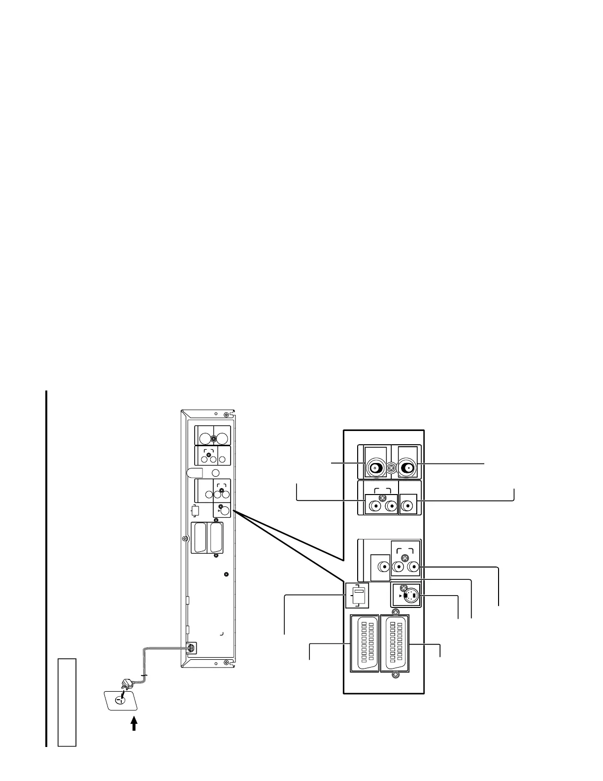
Main Unit (Rear)
VCR/DVD shared
AUDIO output jacks
ANTENNA IN (antena
or cable input)
OUTPUT SELECTOR
SCART LINE 2 socket
DVD AUDIO output jacks
VCR/DVD shared VIDEO
output jack
ANTENNA OUT
DVD S-VIDEO output jack
SCART LINE 1 (TV) socket
DVD DIGITAL AUDIO output jack
LINE 2
LINE 1 (TV)
S-VIDEO
OUTPUT
SELECTOR
RGB
VIDEO
S-VIDEO
DIGITAL
AUDIO
VCR/DVD OUT
R
L
AUDIO
VIDEO
ANTENNA
IN
OUT
DVD OUT
R
L
AUDIO
To an AC outlet
LINE 2
LINE 1 (TV)
S-VIDEO
OUTPUT
SELECTOR
RGB
VIDEO
S-VIDEO
DIGITAL
AUDIO
VCR/DVD OUT
R
L
AUDIO
VIDEO
ANTENNA
IN
OUT
DVD OUT
R
L
AUDIO
DV-NC65H (Rear)

Other manuals for Sharp DV-NC65S

Related product manuals