EasyManua.ls Logo

Sharp KA-62V19IM0-EU - Page 89

Sharp KA-62V19IM0-EU
102 pages
Go to English
To Next Page IconTo Next Page
To Next Page IconTo Next Page
To Previous Page IconTo Previous Page
To Previous Page IconTo Previous Page
Loading...
DE
gebung keine geerdete Steckdose, wel-
che lokalen Regulierungen entspricht,
gibt, rufen Sie sofort den zugelassenen
Kundendienst.
Die geerdete Steckdose muss sich in
unmittelbarer Nähe des Backofens be-
nden. Verwenden Sie niemals ein Ver-
längerungskabel.
Das Stromkabel darf nicht die heiße
Oberäche des Produkts berühren.
Im Fall eines beschädigten Strom-
kabels müssen Sie den autorisierten
Kundendienst rufen. Das Kabel muss
vom autorisierten Kundendienst ausge-
tauscht werden.
Der Anschluss des Geräts muss vom
zugelassenen Kundendienst vorge-
nommen werden. Ein H05VV-F Kabel
muss verwendet werden.
Eine fehlerhafte Verdrahtung kann zu
Schäden am Backofen führen. Derarti-
ge Schäden werden nicht von der Ga-
rantie abgedeckt.
Das Gerät ist dafür konstruiert, mit einer
Spannung von 220-240V~ betrieben zu
werden. Wenn die Spannung von dem
genannten Wert abweicht, setzen Sie
sich sofort mit dem autorisierten Kun-
dendienst in Verbindung.
Die Herstellerrma übernimmt keinerlei
Verantwortung für Schäden und Verlus-
te jeglicher Art, die aus der Nichtbeach-
tung von Sicherheitsnormen herrühren!
ANSCHLUSS UND SICHERHEIT
DES EINBAU-KOMBIOFENS
Der Anschluss des Geräts muss vom
zugelassenen Kundendienst vorge-
nommen werden. Das Gerät ist für
eine Spannung von 220-240V~ und
380-415V 3N ~ ausgelegt. Wenn das
Stromnetz eine andere Spannung als
angegeben aufweist, rufen Sie bitte di-
rekt den zugelassenen Kundendienst.
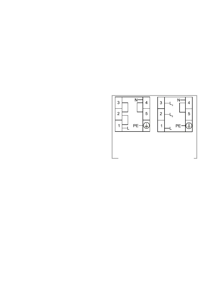
Der Anschluss muss, wie in Abbildung
6 gezeigt, erfolgen. Das Gerät ist für die
Verwendung mit einem Stecker oder ei-
ner festen Verbindung zum Stromnetz
ausgelegt. Innerhalb der Stromleitung
ist eine allpolige Freischaltung mit einer
Kontaktöffnung von mindestens 3mm
zu installieren (40A Bemessungswert,
Verzögerungstyp).
Figure 6
For models over 9500W, wires with a diameter of
2
3x4.0 mm must be used.
2
3x2.5mm 220V~
2
3x2.5mm 230V~
2
3x2.5mm 240V~
2
5x1.5mm 380V~, 3N~
2
5x1.5mm 400V~, 3N~
2
5x1.5mm 415V~, 3N~
Für Modelle über 9500W müssen Kabel mit einem
Durchmesser von 3x4.0 mm
2
verwendet werden.
Abb. 6

Related product manuals