EasyManua.ls Logo

Sharp KB-3411JS - Page 16

Sharp KB-3411JS
60 pages
Print Icon
To Next Page IconTo Next Page
To Next Page IconTo Next Page
To Previous Page IconTo Previous Page
To Previous Page IconTo Previous Page
Loading...
14
KB-3411JS
KB-3411JK
KB-3411JW
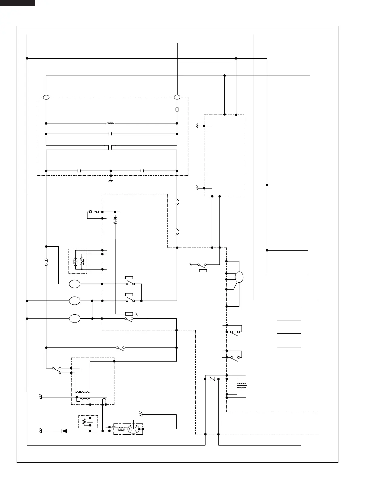
MICROWAVE DRAWER SCHEMATIC (DETAIL)
SM
OL
FM
B1
B3
RY1
RY2
RY5
HUMIDITY
SENSOR
NOISE SUPRESSION COIL
RESISTOR 470 kohm 1/2W
LINE CROSS CAPACITOR 1.0uF 250V
LINE BYPASS CAPACITOR
0.0033uF 250V
LINE BYPASS CAPACITOR
0.0033uF 250V
FUSE
20A
FAN MOTOR
OVEN LAMP
MONITOR SWITCH
PRIMARY INTERLOCK
RELAY
RECTIFIER MAGNETRON
POWER TRANSFORMER
CAPACITOR
1.00uF
AC 2300V
STIRRER MOTOR
L
L
N.O.
COM.
N.O.
COM.
C1
E2
E1
RY11
CONTROL UNIT
M6
N1
N2
N3
N4
N5
M7
SWITCHING POWER SUPPLY UNIT
N
OVEN
THERMAL
CUT-OUT
MG
THERMAL
CUT-OUT
SECONDARY INTELOCK SWITCH
VOLTAGE SWITCH
DM
MICROWAVE DRAWER
DOOR OPEN-CLOSE
MOTOR
DOOR
POSITION
SWITCH
FRONT
M14
M13
DOOR
POSITION
SWITCH
REAR
A2
A4
A6
A1
M1
DOOR
SENSING
SWITCH
M3
F3
F2
F1
RY-BRY-C
L1
LOW VOLTAGE
TRANSFORMER
RED
BLK
BLU
BLK
BLK
BRN
GRY
YLW
ORG
YLW
BLK
RED
BLU
WHT
WHT
ORG
ORG
RED
BLK
RED
RED
RED
RED
BRN
RED
RED
WHT
GRN
BLK
RED
BLK
BRNBLK
BLK
RED
BLK
BLK
WHT
WHT
ORG
ORG
RED
WHT
BRN
BRN
ORG
WHT
WHT
ORG
RED
RED
BLK
WHT
1
3
3
1
WHT
WHT
ORG