EasyManua.ls Logo

Sharp KH-6I45FT00-EU - Page 143

Sharp KH-6I45FT00-EU
148 pages
Print Icon
To Next Page IconTo Next Page
To Next Page IconTo Next Page
To Previous Page IconTo Previous Page
To Previous Page IconTo Previous Page
Loading...
PT
6HJXUDQoDQDLQVWDODomR
ă Qualquer superfície suspensa deve es-
tar a pelo menos 65cm acima da placa.
· As ventoinhas exaustoras devem
estar encaixadas de acordo com as
instruções do produtor.
· A parede em contacto com a parte de
trás da placa deve ser de um material
à prova de fogo.
· O comprimento do cabo de alimenta-
ção não deve exceder os 2 metros.
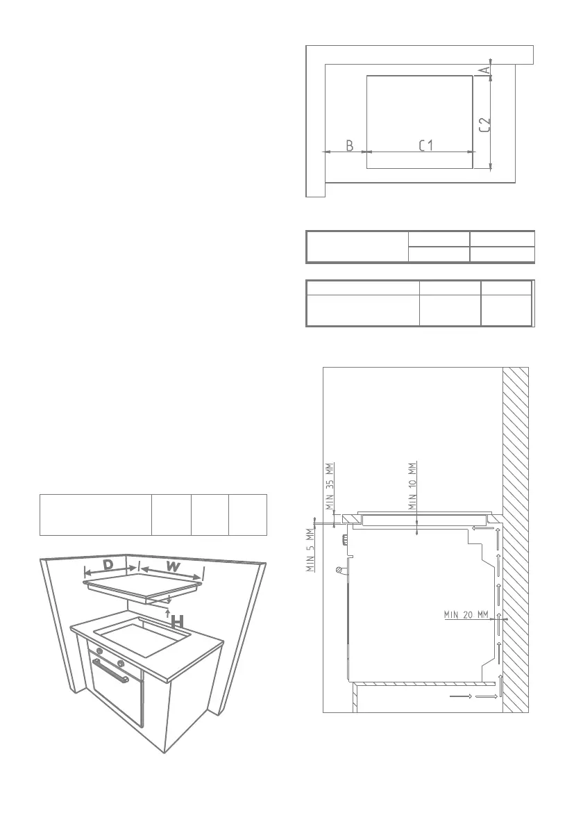
&RORFDUDSODFDQXPDEDQFDGD
· A placa pode ser inserida em qualquer
bancada, desde que esta seja resisten-
te ao calor de, pelo menos, 90ºC.
· Faça uma abertura com as dimen-
sões apresentadas na imagem em
baixo e na página seguinte.
· A placa de indução pode ser encas-
trada em bancadas com uma espessu-
ra de 25 a 40 mm.
W (mm) D (mm)
H (mm)
520
590
58
PRODUCT DIMENSION
CUT OUT DIMENSION C1 (mm) C2 (mm)
560
490
NEIGHBOUR HOOD WALLS MIN A (mm) MIN B (mm)
WOOD /
CONCRETE OR CERAMIC
TILED
50 50

Related product manuals