EasyManua.ls Logo

Sharp KH-6I45FT00-EU - Page 41

Sharp KH-6I45FT00-EU
148 pages
Print Icon
To Next Page IconTo Next Page
To Next Page IconTo Next Page
To Previous Page IconTo Previous Page
To Previous Page IconTo Previous Page
Loading...
AL
6LJXULDJMDWsLQVWDOLPLW
ă Çdo sipërfaqe e varur duhet të jetë të
paktën 65 cm mbi sobë.
· Ventilatorët e zgjatur duhet të
montohen në përputhje me udhëzimet
e prodhuesit.
· Muri në kontakt me pjesën e pasme
të vatrës duhet të jetë bërë nga
materiale rezistente ndaj zjarrit.
·Gjatësia e kabllos të energjisë nuk
duhet të tejkalojë 2 metra
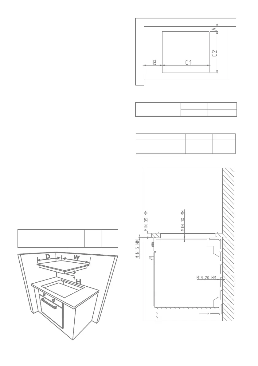
0RQWLPLLQMsSOODNHQsQMs
VLSsUIDTHSXQH
· Vatra mund të futet në çdo platformë
pune me kusht që ajo të jetë rezistente
ndaj nxehtësisë deri në të paktën 90ºC.
· Krijo një hapje me dimensionet e
treguara në foton më poshtë dhe në
faqen tjetër.
·
V
atrat me induksion mund të
vendosen në platforma deri 25 deri
40 mm të trasha.
W (mm) D (mm)
H (mm)
520
590
58
PRODUCT DIMENSION
CUT OUT DIMENSION C1 (mm) C2 (mm)
560
490
NEIGHBOUR HOOD WALLS MIN A (mm) MIN B (mm)
WOOD /
CONCRETE OR CERAMIC
TILED
50 50

Related product manuals