EasyManua.ls Logo

Sharp LC-32LE705E/S - Page 27

Sharp LC-32LE705E/S
58 pages
Print Icon
To Next Page IconTo Next Page
To Next Page IconTo Next Page
To Previous Page IconTo Previous Page
To Previous Page IconTo Previous Page
Loading...
LC-32/40/46LE705E/S, LU705E/S, LX705E, LC-52LE705E/S
4 – 7
1
23
1097654
8
J
A
B
C
D
E
F
G
H
I
1311 191816151412 17
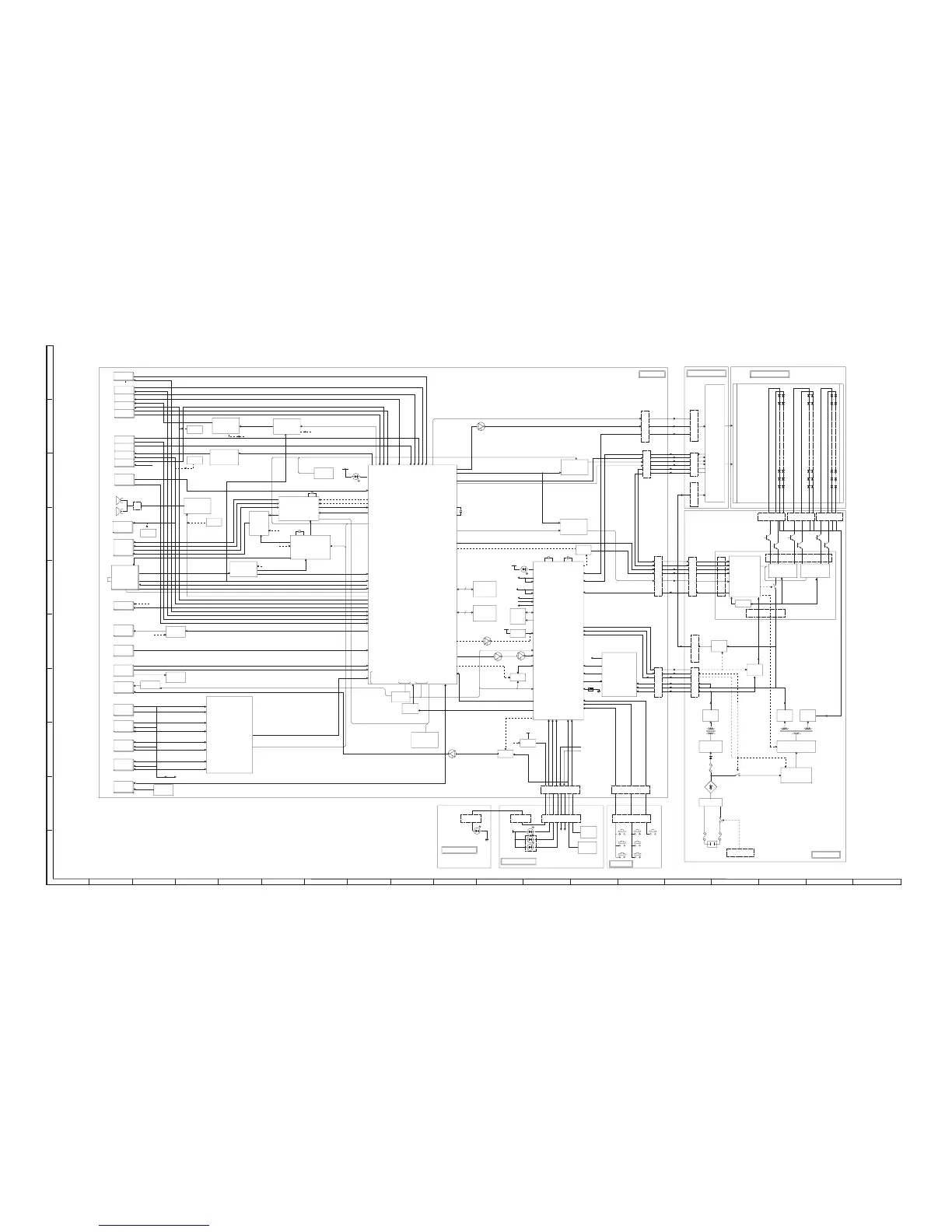
SYSTEM BLOCK DIAGRAM (LC-46LE705E/S, LU705E/S, LX705E, LC-52LE705E/S)
1920x1080
LCD_CONTROLLER
LB(CN7605)
(12pin)
3.3V
(4pin)
PD(CN7001)
POWER_UNIT
LCD_PANEL
PNL+12V
PL(CN7003)
(15pin)
PL(P4804)
(41pin)
LW(SC4801)
(4pin)
LP(P4803)
(9pin)
LCD PANEL UNIT
PNL_12V
LA2(CN7007)
(10pin)
LA3(CN7008)
(6pin)
T-CON UNIT
PS_ON
STBY_CONV.
228V
NOISE_FILTER
BU+5V
MAIN_CONV.
13V
13V
AC_INLET
BU5V
PFC
CONTROL
228V
AC-DET
3.3V
(3pin)
SA(CN7002)
VSYNC
OFL
U7801
IR2E59
SCL/SDA BL
LED DRIVER
BL_ON
V13CTL
STB
ERROR
LCMXO1200
HSYNC
Reset
CONTROLER
U7802
LED DRIVER
(10pin)
LA1(CN7606)
SCLC/SIN/SOUT
U7803
IR2E59
LED DRIVER
(CN7604)
(CN7603)
(CN7601/7602)
LCX244FT
IFAGC
S153
CVBS_MONI_OUT
W_PROT_M
IXC951WJQZQ
SC2_Y/C
Disclete
YDA148QZ
TS_CPU_IN
IC507
X3302
DET_POW2_PNL12V
LINE REG
KM(P2002)
(2pin)
CPU_TXD_UCOM
RS-232C
VCOM_SCL/SDA
J504
BU+3.3V
HP
SC503
AC_DET
J3301
CPU_RXD_UCOM
RA(P2003)
RESET
DET
UR+13.5V
DDC_3
J503/503
OFL1
AHC1G08W
CVBS_IN
D5V
ANT_5V_SW
MONITOR_MICON
RGB
CH-UP
YPbPr/LR
CI
OPC
MONITOR OUT
R/C
SLOWSW2
IC2008
TUNER OUT
VOL-UP
IC508
RXD/TXD_DBCG
27MHz
MONITOR_OUT_L/R
RA(P102)
CEC_I12
GSP
SC1_IN_L/R
TA1+/-,TB1+/-,TC1+/-,TCLK1+/-,TD1+/-,TE1+/-,
DET_POW1_13V
SLOWSW1
IC8452
CVBS/LR
FS/
CVBS/LR
MAIN UNIT
COMP_IN_L/R
IC8454
IC101
BU+3.3V
COMP_IN_L/R
IC1102
(15pin)
POWER_SUPPLY
USB
DDR2
IC504
EXT4/6
T7SET08
HDMI2/PC
SCL/SDA BL
EXT1(CVBS/YC/RGB)
HDMI_3
SC1_Y/C
GSP
SENSOR
SP
SW_TMDS_D1
CPU_UARXD0_RS
Buffer
BU+5V
IC3501
COMP_YPbPr
HP_L/R
D1.05V
Spliter
MUX
(5pin)
IC3502
DVB-C SEL
Q2002
RGB
OPC
CI_CEB, CI_RB
R
Spliter
PC/HDMI_L/R
AV_LINK
BACK-UP_SYSTEM
VON
TUNER_CVBS
MM1506XN
SW.
EXT6
MUTE
D3.3V
GCK
ICON UNIT
LNB_SHORT
LCX157FT
IXC790WJ
BU3.3V
HDMI-SW
IC2001
LED_G
PC_RGB
7WH126FU
IC4405
IR_SW.
IC2701
TUNER_OUT
BU+3.3V
FS/FB
ILL_LED
RS_BUF_CNT
SC2_IN_L/R
SW_TMDS_CLKP/N
512Mbit
UCOM_RST
IC4401/2/3
EXT7
RGB
SC2_CVBS_Y
CNVss
SW.
CPU1.2V
HDMI_1
SLOWSW1
D5V
KEY1
SC1501
27MHz
RS_BUF_CNT
20MHz
IM(P201)
EXE_LED
IC2009
EXE_LED
SC1503
EXT5
HDMI_2
TS_CPU_OUT
N_CPU_RST
D3.3V
TUNER_SDA/SCL
SC502
P2701
SDA.SCL(400Hz)
RN4901
R/C, LED UNIT
S155
IC3301
PC_RGB
CEC_LINE
IF_DEMIX
HP_PLUG
D_POW
POW13V
MM1507XN
PE
CVBS_IN_L/R
S154
Demodulator
PNL_IC2_EN
STV0297E
AC_DET
SW_TMDS_D0P/N
SC2_Y/C
OPC
1066Mbit
CVBS__IN
CNVss
X4401
IXC786WJ
TUNER
X2002
SDA1.SCL1
AUDIO(R/L)
D_IF IN P/N
CI Controller
(2pin)
D102
D1.8V
HDMI-3
PD(P9601)
IFAGC
CPU_UARXD2_UCOM
OUTPUT(AUDIO)
PNL_ROM_EN
SC1FSW
SC1_Y/C
MONITOR_L/R
CPU_UATXD2_UCOM
DDC_1
PS_ON
MM1756AU
(10pin)
MUTE
RMC101
QSTEMP
AMP13V
IC2007
LV4053FT
BUSY/CE/EPM/SCLK
IM(P101)
CEC_O12
LED_OPC
S24C508J
LAMP_ERR
EEPROM
RXD/TXD
X1101
IR
PNL_EN
SM_POW
PDD[0:7]
I2C1_SCL
FLASH
PC/HDMI_L/R
GPFSV51V
D_POW
KM(P151)
IC2004
KEY2
MAIN_SYSTEM
SIF
IC2002
HDMI_4
GCK
IC2601
CVBS BYPASS
SC1502
HC2G66DP
SP_R
M3221EIP-1Y
COMP_YPbPr
27MHz
ERR_PNL
DDC_2
DIGITAL
LED_R
VOL-DOWN
IXC147WJQZQ
HV_MODE
HDMI-1
CPU_UATXD0_RS
IC9611
AV_LINK_I
OPT_OUT
PM_REQ,CBOOTS
OFL1
STBY_POW
MUTE
CI_D[7:0] /CI_A[14:0]
(PC)
SPK_OUT_L/R
DVBC
AHC1G08W
POWER
D103
LAMP_ERR
N_SRESET
S152
CNVss
USB
OPC
S157
AV_LINK
LCD_EN
IC1504
(COMMON
IC506
Digital AV decode
SC1505
RGB
EXT2(CVBS/YC)
BD6538G
HDMI-4
TH2001
SC2_CVBS/Y
IC1106
MT8295
TS_CI_OUT
IC8455
CH-DOWN
CIRCUIT
MUTE_A_ALL
SII9287
TUNER_CVBS
Disclete
HP_L/R
CVBS_IN_L/R
TU_CVBS_OUT_MUTE
TUNER_CVBS_SEL
D520
CIEN,CIDET
N_SRESET
OPT+3.3V
SIF
DET_POW3_D3V3
AUDIO_OUTPUT
SC1_V_OUT
SPDIF_OUT
(MINI_PLUG)
EXE_LED1
20MHz
SPK_OUT
INPUT
TMDS_Rx/ I2C_SINK
Disclete
AV_LINK
LED_OPC
MUTE_A_ALL
OPC+3.3V
SP_L
SC2_V_OUT
J501
SW_TMDS_D2
STB
DET_SYNC
Disclete
RC
CI_CNT_RESET
AV_OUT
SC1FSW
X2001
EXT4
OPT_OUT
BU+5V
RECEVER
POWR_LED
TC7SH00U
EEPROM
PNL_POW
SC501
MUTE
RXD/TXD_CPU
SW
ANT_POW
M24C64WN
TS_CI_IN
DDC_4
CEC_LINE
MUTE
EXT8
SC2_IN_L/R
S+8V
TA2+/-,TB2+/-,TC2+/-,TCLK2+/-,TD2+/-,TE2+/-
1066Mbit
S151
SW
EXT8
VCOM_WP
DVB-C
J50
(4pin)
DET_SYNC
LW(P2601)
OPT OUT
BU+3.3V
INTERFACE)
S80927NM
STB
AUDIO_OUT
etc.
CVBS_YU_OUT
SC1_CVBS/Y
POW_SW
IC3302
ANALOG_RGB
G/B
TUNER_OUT_L/R
AV_LINK_O
KEY1
IC501
MONITOR_L/R
EXT3(COMP/AUD)
(10pin)
I2C1_SDA
SC4401
PC_H/Vsync
D3.3V
IR_PASS
IC8401
LR_OUT
KEY2
USB_DP/N
KEY UNIT
DDR2
PNL_WP
TVPOW
J505
RESET
SLOWSW2
BR24C21F
LP(P2602)
(12pin)
IXC790WJ
EEPROM
SC1_IN_L/R
LB(P9602)
LNB_SHORT
RS232C TxRx
(9pin)
POWG_LED
TUNER_OUT_L/R
PM_REQ,CBOOTS
D_IF IN P/N
S156
S+13.5V
SC1_CVBS_Y
LVDS_OUT
IC503
HDMI-2
MENU
FE_RST
(41pin)
HC2G66DP
PNL_POW
CVBS/LR
D3.3V
SW.
SP AMP
TU1101
LR_OUT
PC_H/Vsync

Related product manuals