EasyManua.ls Logo

Sharp LC-40LE630E - Page 122

Sharp LC-40LE630E
176 pages
Print Icon
To Next Page IconTo Next Page
To Next Page IconTo Next Page
To Previous Page IconTo Previous Page
To Previous Page IconTo Previous Page
Loading...
122
LC-32LE63x
LC-40LE63x
LC-46LE63x
1
2345678910
11 12
13
14
15 16
I
H
G
F
E
D
C
B
A
DC/DC
B03E B03E
2010-12-10
4
3139 123 6495
SPB SSB TV550
2K11 4DDR EU
GND
VIN
AP SH
INH
SYNC
SW
VFB
A
SW
VIA
COM
NITUO
COM
NITUO
GND
VIN
AP SH
INH
SYNC
SW
VFB
A
SW
VIA
FOR 5000 SERIES ONLY
∗∗
()
(∗∗)
NOT FOR 5000 SERIES
10K
3U07
2
6
1
+1V1
+5V
RES
RES
BC847BS(COL)
7U05-1
+12V
1%
3UD2
3UD3
100K
16V
120K
2UE4
220u
IUD1
IUD2
10
11
12
13
14 15
3
1
6
ST1S10PH
7UD0-2
4
9
2
8
7
5
7UD0-1
ST1S10PH
3UD4
1M0
4n7
2UD7
+2V5
10K
RES
3U06
RES
2U27
100n
2UD1
10u
10u
2UD0
22u
2UE9
IU28
RES
2UD8
10u
+1V1
IUD4
100n
2UE5
IUD3
S1D
6UD1
2UE3
22u
22u
2UE2
5
3
4
RES
BC847BS(COL)
7U05-2
IUD0
FUD3
+3V3
2UD5
22u
IUD6
FUD2
10u
2UD2
1%
u22V61
2UE6
3UD0
68K
30R
5UD3
1
32
7UD3
LD1117DT33
RES
100n
2U28
2UE0
10u
10u
2UD9
+12V
+5V5-TUN
IUD5
u022V61
2UD6
6UD0
SS36
33K
3UD1
1%
1n0
2UD3
RES
4n7
2UE1
IUD7
33K
1%
3UD5
5UD0
30R
22u
2UD4
5UD1
3u6
3u6
5UD2
7UD1-2
ST1S10PH
10
11
12
13
14 15
16V
1
6
2UE8
22u
7UD1-1
4
9
2
8
7
35
+5V
+3V3
ST1S10PH
IU27
32
7UD2
LD1117DT25
1
2UE7
100n
ENABLE-3V3-5V
ENABLE-3V3-5V
1
2345678910
11 12
13
14
15 16
I
H
G
F
E
D
C
B
A
(
*
) FOR 63x SERIES ONLY
(
**
) NOT FOR 63x SERIES
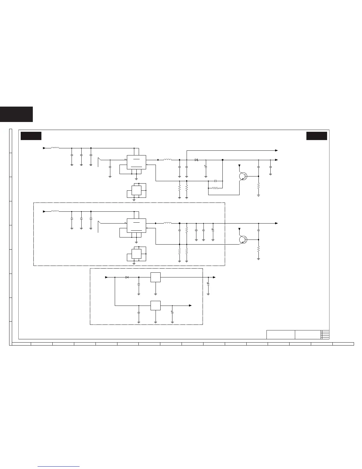
10-3 Main Unit (Continued) B03E DC/DC Schematic Diagram

Table of Contents

Related product manuals