EasyManua.ls Logo

Sharp LC-40LE630E - Page 136

Sharp LC-40LE630E
176 pages
Print Icon
To Next Page IconTo Next Page
To Next Page IconTo Next Page
To Previous Page IconTo Previous Page
To Previous Page IconTo Previous Page
Loading...
136
LC-32LE63x
LC-40LE63x
LC-46LE63x
DVBS supply
B08B B08B
2010-12-10
4
3139 123 6495
SPB SSB TV550
2K11 4DDR EU
VIA
VIA
VIA
VIA
Φ
LX
NC
ISEL
VORX
VOTX
DSQOUT
VCC_L
VCC
BYP
SCL
SDA
ADDR
DETIN
DSQIN
EXTM
TTX
VCTRL
VUP
A_GND
P_GND
GND_HS
STPS2L30A
6T51
+12V
+V-LNB
220n
2T53
IT64
9T51
5T51
3T56
10K
30R
2T58
470n
RES9T52
10K
3T60
+12V
RES
IT63
IT61
2T56
2T51
100n
470n
IT59
+12V
2T57
100u
IT52
RES
35V
RES
5T50
22u
IT65
RS1D
6T53
2T52
220n
IT56
IT62
3T58
2K2
3T52
22K
RES
41
42
45T6SER
BAS316
7T50-2
LNBH23Q
34
35
36
37
38
39
40
10K
3T57 RES
IT50
IT53
BAT54 COL
6T50
2K2
3T59
RES
9T50
1R0
3T62
RES
14
19
18
30
21
22
27
7
8
16
17
23
24
5
9
6
33
28
4
1
25
26
31
32
2
3
10
20
15
29
1121
13
7T50-1
LNBH23Q
2T54
10n
RES
3T53
15R
6T55
RS1D
100R
IT28
3T61
3T51
100R
2T59
470n
22R
3T27 RES
RES
150R
3T54
u001 V53
2T55
RES
BC817-25W
7T51
3T22
220R
+3V3-DVBS
RES3T55
10K
u001V53
2T50
RES
IT68
IT69
6T52
RES
STPS2L30A
3T50
100R
IT55
RES
1n0
2T61
IT66
IT54
IT51
220u
5T52
2T62
IT60
RES
10n
IT57
IT58
10u
2T60
IT67
+3V3-DVBS
DISECQ-DET
SCL-SSB
SDA-SSB
DISECQ-DET
F22-DISECQ-TX
LNB-RF1
LNB-RF1
DISECQ-RX
V0-CTRL
1
2345678910
11 12
13
14
15 16
I
H
G
F
E
D
C
B
A
1
2345678910
11 12
13
14
15 16
I
H
G
F
E
D
C
B
A
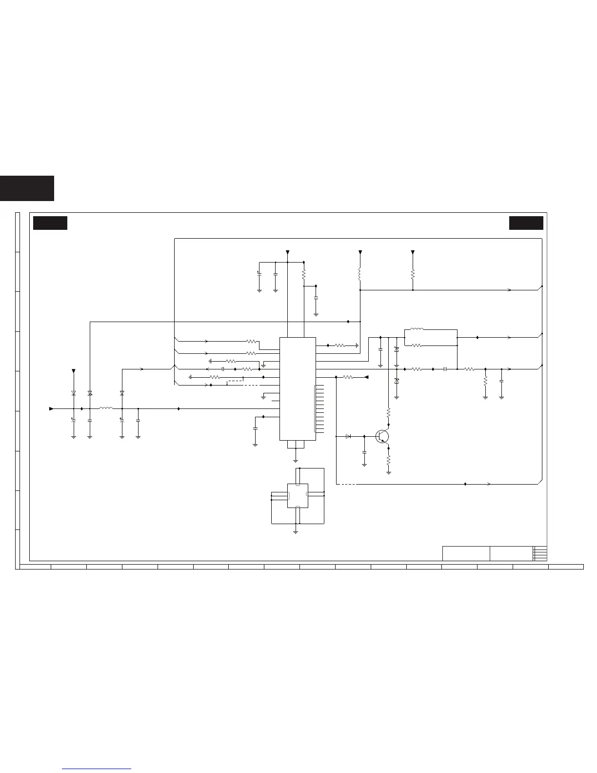
10-8 Main Unit (Continue) B08B DVBS supply Schematic Diagram

Table of Contents

Related product manuals