EasyManua.ls Logo

Sharp LC-40LE832U - Page 16

Sharp LC-40LE832U
110 pages
Print Icon
To Next Page IconTo Next Page
To Next Page IconTo Next Page
To Previous Page IconTo Previous Page
To Previous Page IconTo Previous Page
Loading...
LC-40/46/52/60LE835U/830U/832U/LC-60LE831U
3 – 4
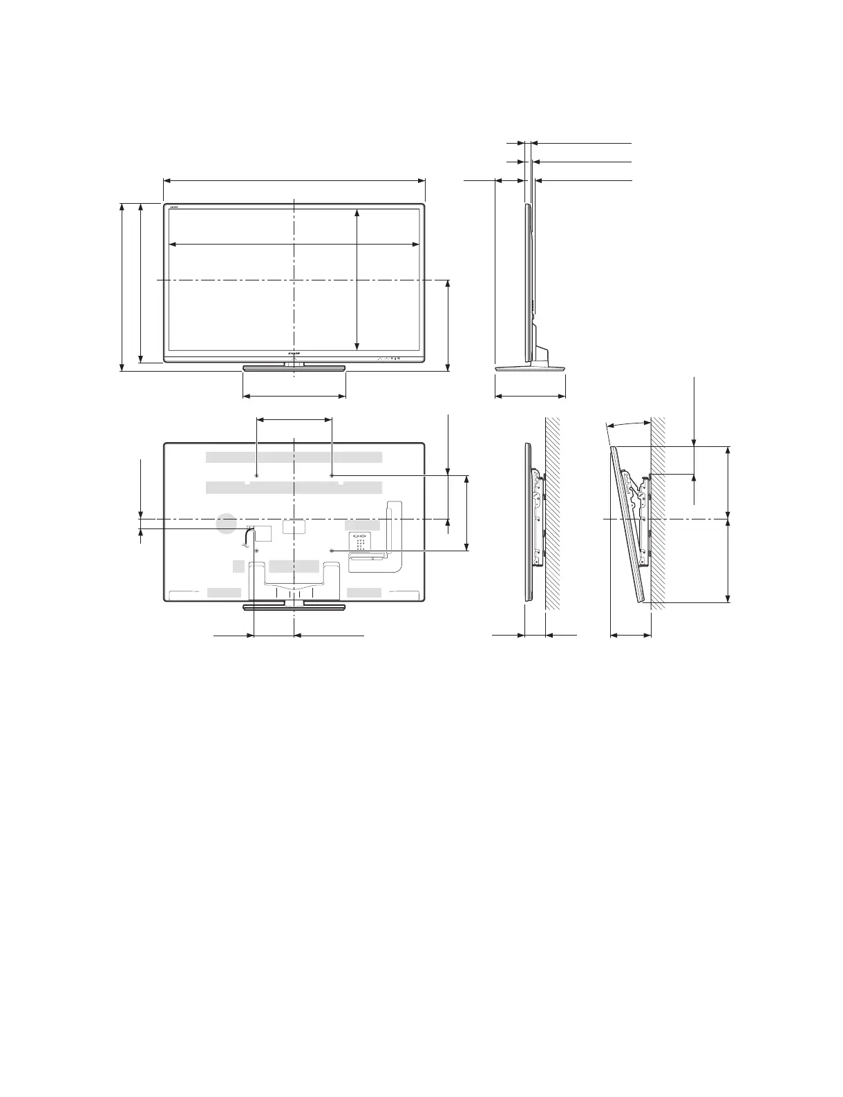
[4] DIMENSIONS (LC-60LE835U/830U/831U/832U)
Unit: inch (mm)
15
3
/
4
(400)
15
3
/
4
(400)
9
1
/
16
(230)
2
1
/
16
(52)
54
29
/
64
(1383)
34
31
/
32
(888)
33
1
/
32
(839)
19
9
/
64
(486)
21
7
/
64
(536)
8
15
/
32
(215)
AN-52AG4
52
11
/
32
(1329.12)
*1
15
3
/
32
(383)17
31
/
64
(444)
5
23
/
32
(145)
10°
14
27
/
64
(366)
1
5
/
16
(33.4)
*3
1
5
/
8
(41)
*4
1
3
/
64
(26.4)
*2
29
7
/
16
*1
(747.63)
6
5
/
16
(160)
8
13
/
64
(208)
3
63
/
64
(101)
*1
Active area
*2
Thinnest part
*3
Excluding projecting parts
*4
Including projecting parts

Related product manuals