EasyManua.ls Logo

Sharp LC-40LE832U - Page 34

Sharp LC-40LE832U
110 pages
Print Icon
To Next Page IconTo Next Page
To Next Page IconTo Next Page
To Previous Page IconTo Previous Page
To Previous Page IconTo Previous Page
Loading...
LC-40/46/52/60LE835U/830U/832U/LC-60LE831U
4 – 18
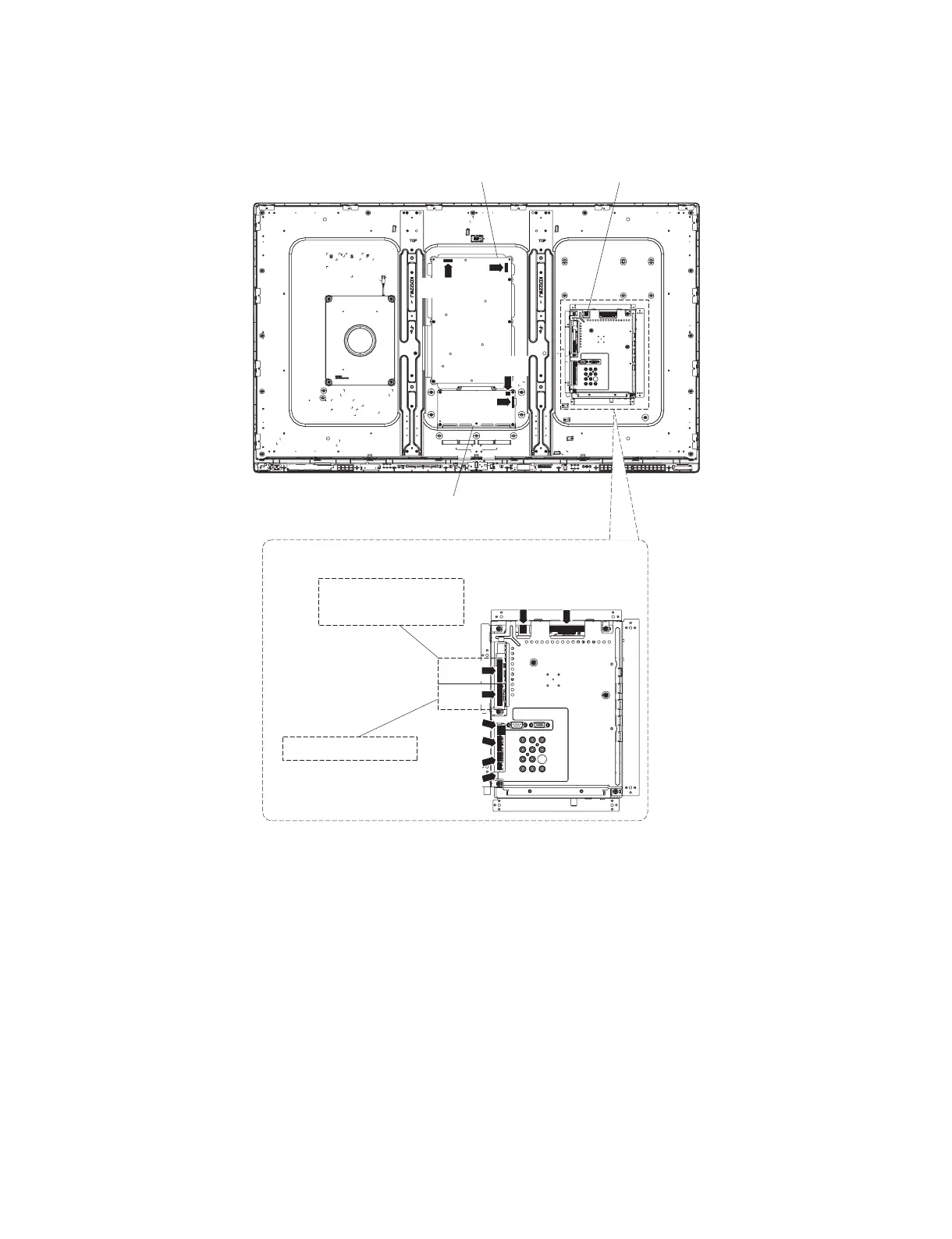
3. Removing of Connectors
1. Disconnect the following connectors from the MAIN Unit. (SB, PD, LW (LC-60LE835U), PL, RC, Cl, UB, LV (LC-60LE830U/831U/832U))
2. Disconnect the following connectors from the POWER/LED Drive Unit. (PD, LA)
3. Disconnect the following connectors from the LCD Control Unit. (LW, PL)
MAIN UnitPOWER/LED Drive Unit
LCD Control Unit
[PD]
[LA]
[LW]
[PL]
MAIN Unit
LC-60LE830U/
831U/832U
[SB]
[PD]
[UB]
[CI]
[RC]
[PL]
[LW]
[LV]
LC-60LE835U

Related product manuals