EasyManua.ls Logo

Sharp LC-C5262U - Page 34

Sharp LC-C5262U
38 pages
Print Icon
To Next Page IconTo Next Page
To Next Page IconTo Next Page
To Previous Page IconTo Previous Page
To Previous Page IconTo Previous Page
Loading...
LC-C4662U
i
LCC4662U
Service Manual
OUTLINE AND ADJUSTMENT
[1] Outline
In this Service Manual, only parts in the LCD module are shown. For the other points, refer to the LC-C4662U/LC-C5262U (S47E4LCC5262U) and
LC-46D62U/LC-52D62U (S86V8LC52D62U) Service Manual.
[2] Adjustment
When replacing the LCD control PCB, follow these steps to adjust VCOM.
1) Enter the adjustment process mode.
2) Select the item [VCOM ADJ] on the page 3/26 using the CH ( )/( ) keys on the remote controller.
3) Press the Enter key to check that the adjustment pattern is displayed.
4) Adjust the flicker in the middle of the screen to minimum using the VOL (+)/(-) keys on the remote controller.
5) Press the Enter key to turn off the pattern.
6) To exit the adjustment process mode after the adjustment is done, unplug the AC cord from the outlet to make a forced shutdown. (When the
power was turned off with the remote controller, once unplug the AC cord and plug it again. In this case, wait 10 seconds or so before plugging.)
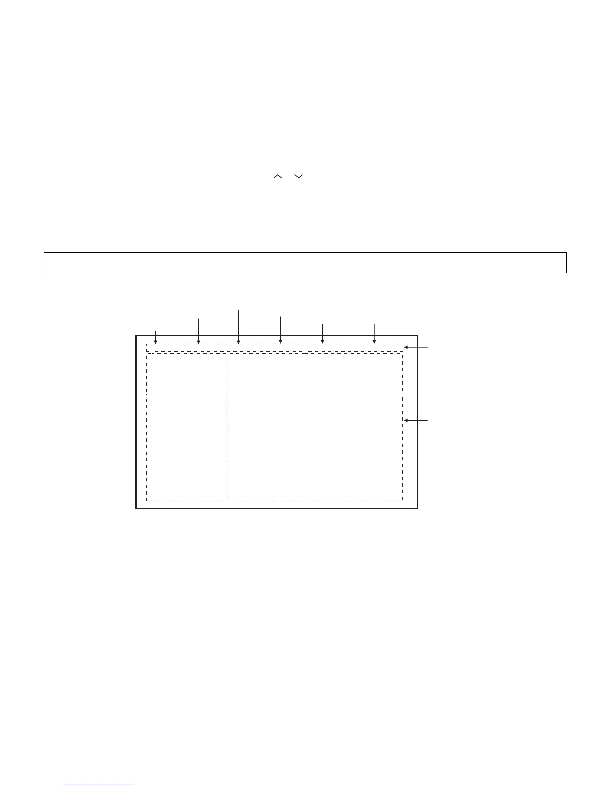
Description of display
CAUTION: Use due care in handling the information described here lest your users should know how to enter the adjustment process mode.
If the settings are tampered in this mode, unrecoverable system damage may result.
(3) Current selected input
(2) Current page title
(4) Current color system
(1) Current page/ (5) Destination
(6) LCD Panel size/Speaker type
Total pages
1/26 [INFO] INPUT5 AUTO USA 46_UNDER
MAIN Version 0.95 ( U 2006/02/02 1)
BOOT Version OLYM0.92
Monitor Version 0.88
EQ DATA CHECKSUM ROM (8) Parameters
TEMPAERATURE 7B
LAMP ERROR 0
NORMAL STANDBY CAUSE
0
ERROR STANDBY CAUSE 1) 0 2) 0 3) 0
00H 00M 00H 00M 00H 00M
4) 0 5) 0
00H 00M 00H 00M
(7) Adjustment
process menu
header

Related product manuals