EasyManua.ls Logo

Sharp PN-R556 - Page 58

Sharp PN-R556
64 pages
Print Icon
To Next Page IconTo Next Page
To Next Page IconTo Next Page
To Previous Page IconTo Previous Page
To Previous Page IconTo Previous Page
Loading...
58
E
Specications
n
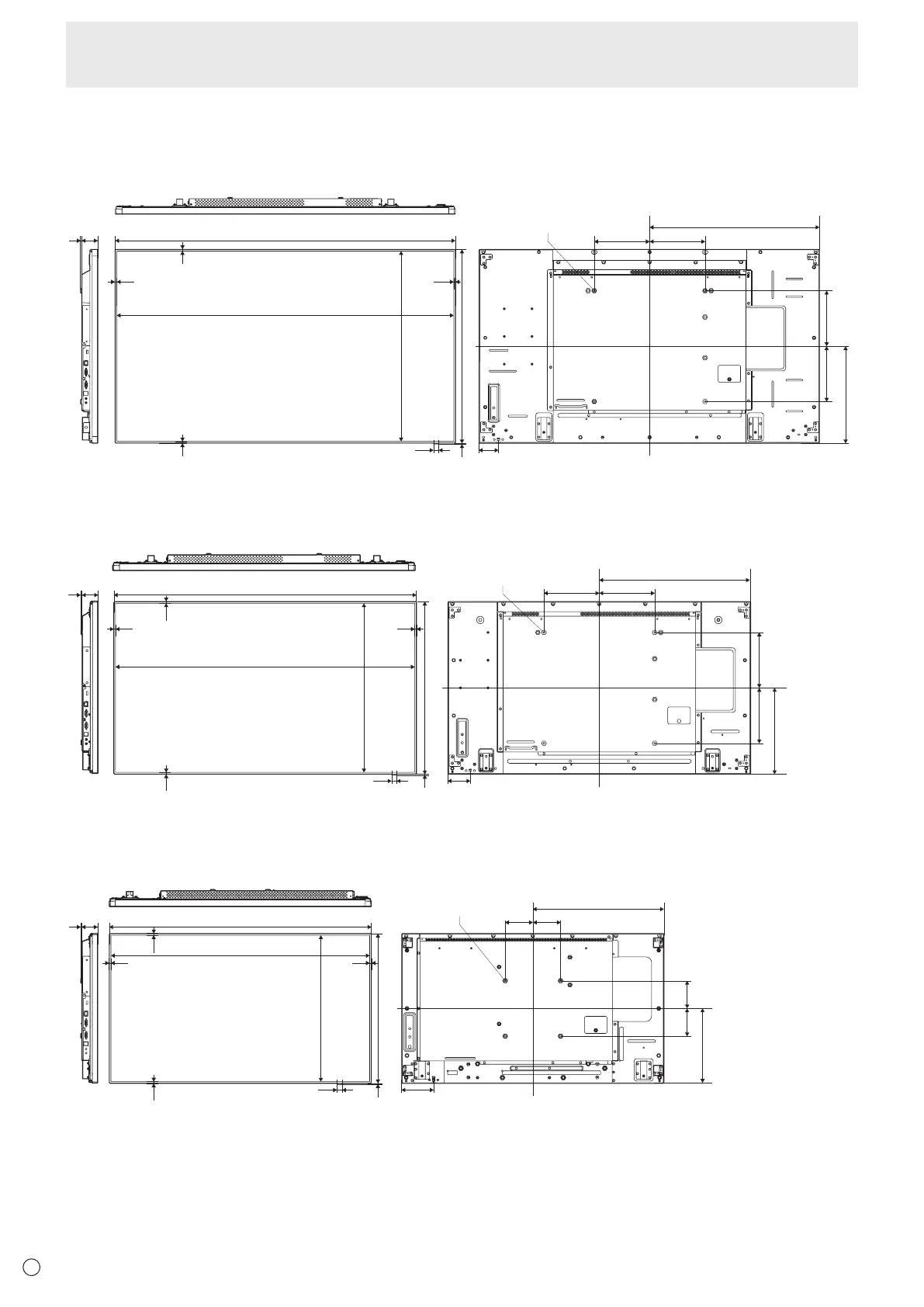
Dimensional Drawings
Note that the values shown are approximate values.
[PN-R556]
Opening height (27 [686.4]
)
48-7/16 [1231]
2-1/4
[57]
3/16
[5]
Opening width (47-7/8 [1215.4])
27-5/8 [702]
5/16
[7.8]
1/16
[2]
5/16
[7.8]
5/16
[7.8]
5/16
[7.8]
VESA holes *
Unit: inch [mm]
2-11/16
[69]
11/16
[17]
7-7/8 [200]7-7/8 [200]
13-13/16 [351]
24-1/4 [615.5]
7-7/8 [200] 7-7/8 [200]
[PN-R496]
Opening height (24-1/16 [610.4])
Opening width (42-1/2 [1079.4])
24-5/8 [626]
7-7/8 [200]
VESA holes *
7-7/8 [200]
7-7/8 [200] 7-7/8 [200]
43-1/8 [1095]
Unit: inch [mm]
3-3/16
[81.5]
12-5/16 [313]
21-9/16 [547.5]
2-1/4
[57]
3/16
[5]
5/16
[7.8]
5/16
[7.8]
5/16
[7.8]
5/16
[7.8]
11/16
[17]
1/16
[2]
[PN-R426]
Opening height (20-13/16 [527.9])
Opening width (36-3/4 [933.4])
21-3/8 [543.5]
3-15/16
[100]
VESA holes *
3-15/16
[100]
3-15/16
[100]
3-15/16
[100]
37-3/8 [949]
Unit: inch [mm]
4-9/16
[116]
10-11/16 [271.75]
18-11/16 [474.5]
2-1/4
[57]
3/16
[5]
11/16
[17]
1/8
[2.5]
5/16
[7.8]
5/16
[7.8]
5/16
[7.8]
5/16
[7.8]
When mounting the monitor, be sure to use a wall-mount bracket that complies with the VESA-compatible mounting method.
SHARP recommends using M6 screws and tighten the screws.
Note that screw hole depth of the monitor is 3/8 inch (10 mm). Loose mounting may cause the product to fall, resulting in
serious personal injuries as well as damage to the product. The screw and hole should come together with over 5/16 inch
(8 mm) length of thread. Use a bracket which has been approved for UL1678 standard, and which can endure at least 4 times
or more the weight of the monitor.

Other manuals for Sharp PN-R556

Related product manuals