EasyManua.ls Logo

Sharp SJ-P47N-SL - Page 26

Sharp SJ-P47N-SL
34 pages
Print Icon
To Next Page IconTo Next Page
To Next Page IconTo Next Page
To Previous Page IconTo Previous Page
To Previous Page IconTo Previous Page
Loading...
26
SJ-P43N/43N
SJ-P47N/47N
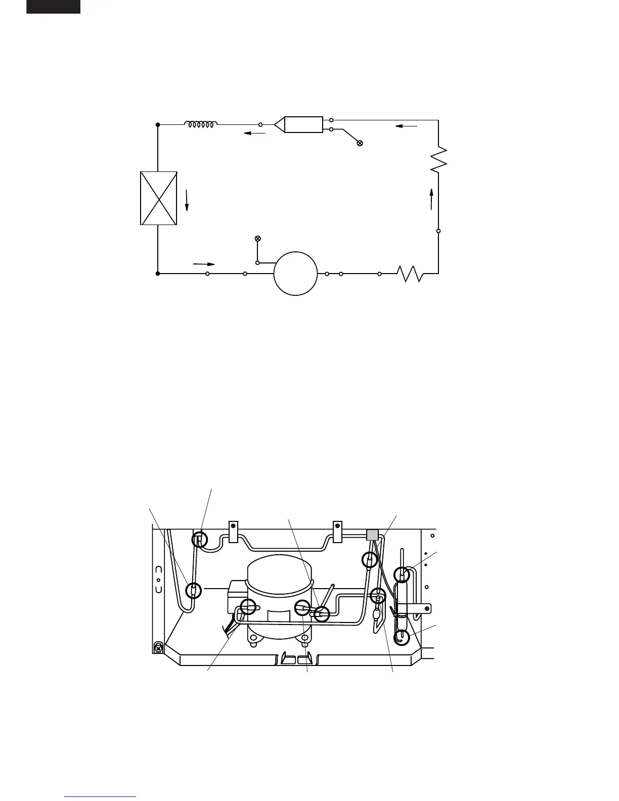
From Suction pipe
to SP connector
From Compressor
to Charge pipe
From Dryer
to Capillary tube
From Discharge p connector
to Eva-pan pipe ass’y
From SP connector
to Compressor
From Compressor
to Discharge p connector
From Eva-pan pipe ass’y
to Back condenser In
From Back condenser out
to Hot pipe
From Hot pipe
to Dryer
Figure C-3. Location
Figure C-2. Location
Compressor
Suction pipe
Charge pipe
Charge pipe
Capillary tube
Dryer
Hot pipe
S.P. connector
Eva-pan pipe
Back condenser
Evaporator

Related product manuals