EasyManua.ls Logo

ShoreDocker SD1200 - Step 4: Install the Winch System

Default Icon
6 pages
Print Icon
To Next Page IconTo Next Page
To Next Page IconTo Next Page
To Previous Page IconTo Previous Page
To Previous Page IconTo Previous Page
Loading...
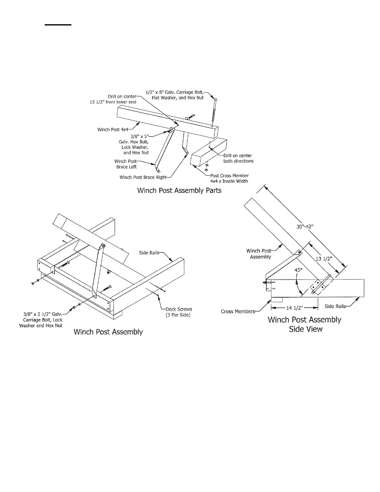
STEP 4: INSTALL THE WINCH SYSTEM. Referring to the Figures below, from 4x 4” lumber, cut
t
he
w
i
nch
post base and the winch post. It is recommended to leave the post extra long for now and cut the top
off
later. 48 inches should be plenty for now. The winch post base should be cut to fit snuggly between the side
r
ail
s.
!
Next drill the ½ inch holes for joining the bottom of the winch post to the center of the winch post base. Also
dr
ill
the 3/8 inch hole in the winch post for attaching the top ends of the angle braces. The hole should be 13 ½
from
the lower end of the post and pass squarely through the side at its
c
en
te
r po
i
n
t
.
IMPORTANT: Make a good effort to drill these holes square with the lumber. If possible use a drill press if possible, or,
many
hand drills come with a fixture for drilling holes at a right angle. If you don’t have these tools, don’t fret a small square
and
a good eye should be good
enough.
!
!
!
!
!
!
!
!
!
!
!
!
!
!
!
!
!
!
Now install the winch post base between the side rails at the location as shown. The top edge of the winch
pos
t
base should be 14 ½from the end of the side rail and be flush with the top of the side rail. The face of the 4 x
4
should be at a 45° angle to the top edge of the side
r
ail
.
IMPORTANT: For now just use a single 3 inch screw in each end of the 4 x 4. You will want the option of rotating the 4 x 4
to
allow a
perfect fit of the angle braces with the end crossmember. Install the two screws in the same relative position for
each
end of the winch
post base, i.e. the “upper
center.
Next attach the upper ends of the angle braces (the smaller end tab) to the winch post using a 3/8x4 ½hex
bo
lt
,
lock washer and nut. Attach the winch post to the winch post base with the ½x 8” carriage bolt, flat washer
a
nd
nu
t
.
Clamp the lower ends of the angle braces in place on the front cross member. Before drilling the 3/8 holes in
t
he
front crossmember check
t
h
at:
The winch post is at a right angle to the winch post
bra
ce.
The lower tabs are essentially flat with the
c
rossm
e
mber.
The lower tabs are approximately the same distance from the respective side
r
ail
s.
If things don’t line up, check the position of the winch post base and re-locate as necessary. Drill the holes
a
nd
attach the bottom of side braces with 3/8” x 2 ½carriage bolts, lock washers and
nu
t
s.