EasyManua.ls Logo

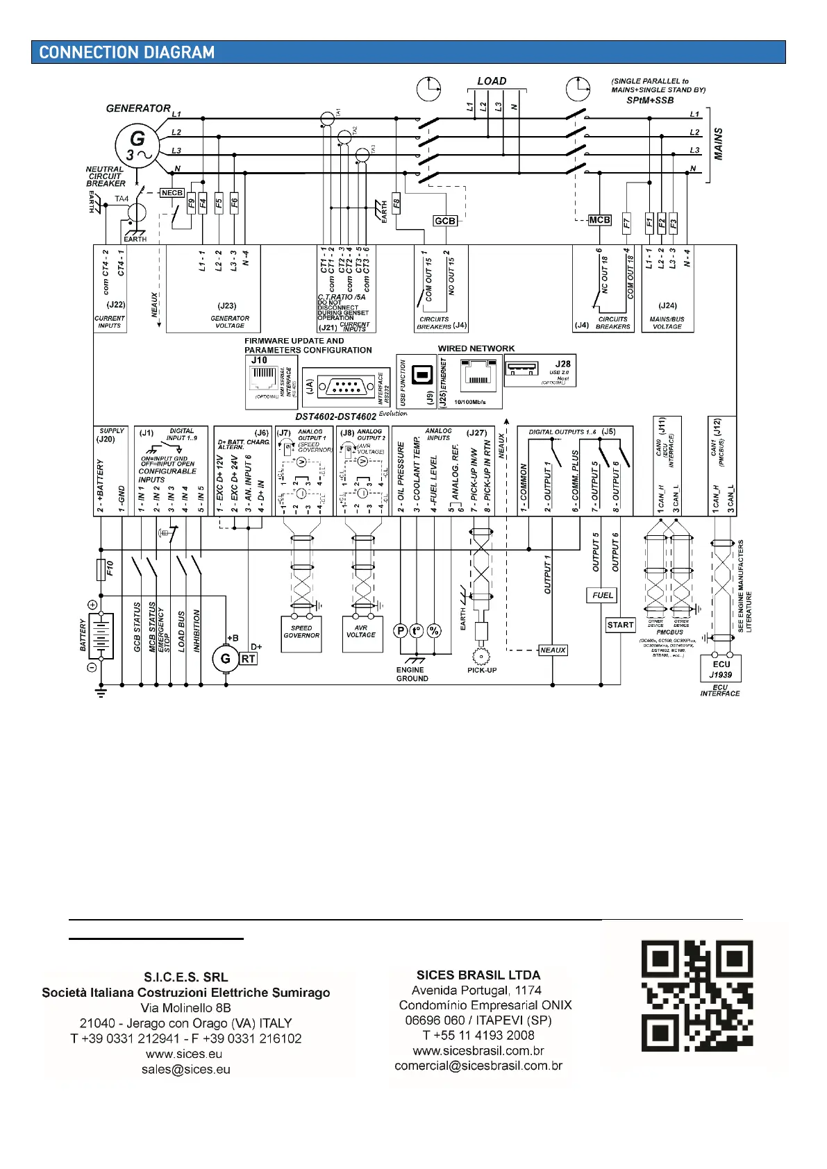
Sices DST4602 - Connection Diagram

Sices DST4602
4 pages
Print Icon
To Previous Page IconTo Previous Page
To Previous Page IconTo Previous Page
Loading...
The technical documentation of the device is available in the “Download Area” of our
website www.sices.eu
EAA0M053900EN

Related product manuals