EasyManua.ls Logo

Siemens 3TK2806 - 3 TK2806 Circuit Diagrams and Operating Modes; 3 TK2806 Circuit with Autostart and Door Monitoring

Siemens 3TK2806
16 pages
Print Icon
To Next Page IconTo Next Page
To Next Page IconTo Next Page
To Previous Page IconTo Previous Page
To Previous Page IconTo Previous Page
Loading...
14 3ZX1012-0TK28-5AA1
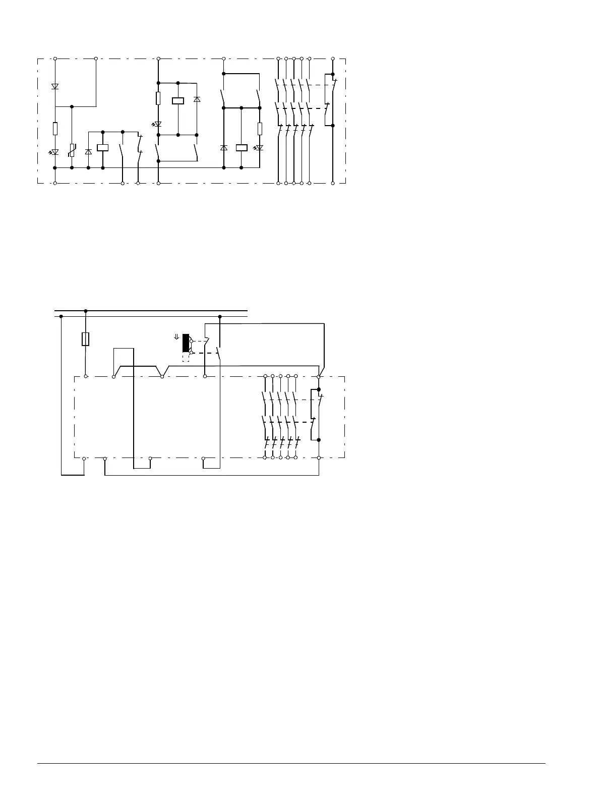
3TK2806
U
H1
K1
K2
K1
K2 H2
K3
K2
K1
655343332313
14 24 34 44 54 66
X5
X3X1
X2 X4
K3
K1 K2
H3
K3
K3
X6
K1
A1
A2
Innenschaltbild (DC-Ausführung)
Internal circuit diagram (DC version)
Schéma interne (variante CC)
Circuito interno (versión para DC)
Schema circuitale interno (esecuzione DC)
Esquema de ligações interno (versão DC)
Вътрешна електрическа схема (DC изпълнение)
Indvendigt strømskema (DC-udgave)
Sisemine lülitusskeem (alalisvooluversioon)
Sisäinen kytkentäkaavio (DC-malli)
Σχέδιο εσωτερικών συνδέσεων (έκδοση DC)
Léaráid den chiorcad inmheánach (leagan DC)
Iekšējā slēguma shēma (līdzstr. izpildījums)
Vidaus sujungimų schema (DC modifikacija)
Dijagramma taċ-ċirkuwitu intern (verżjoni DC)
Intern schakelschema (DC-uitvoering)
Schemat połączeń elektrycznych wewnątrz urządzenia
(wersja DC)
Schemă electrică internă (varianta DC)
Internt kopplingsschema (DC-version)
Vnútorná schéma zapojenia (DC vyhotovenie)
Notranja shema vezja (izvedba za DC)
Schéma vnitřního zapojení (provedení DC)
Belső kapcsolási rajz (DC kivitel)
İç devre şeması (DC modeli)
Схема внутренних соединений (Исполнение DC)
内部电路图
DC
规格)
Autostart; Schutztür (2-kanalig)
Autostart, Protective door monitoring (2-channel)
Démarrage automatique , Surveillance de protecteur mobile
(2 canaux)
Autoarranque, Monitoreo de puerta de protección (2 canales)
Avvio automatico, Controllo riparo di protezione (a 2 canali)
Autostart, Monitoramento da porta de proteção (2 canais)
автоматично стартиране, Наблюдение на защитната врата
(2-канално)
Autostart, Overvågning af beskyttelsesdør (2 kanal)
Automaatkäivitus, Turvauste kontrollimine (2-kanaliga)
Automaattinen käynnistys, Suojaoven valvonta (2-kanavainen)
Αυτόματη εκκίνηση, Επιτήρηση πόρτας προστασίας
(2 καναλιών)
Uath-tosaithe, Monatóireacht ar dhoras cosanta (2-chainéal)
Autostarts, Drošības durvju kontrole (2 kanālu)
Automatinė paleistis, Apsauginių durų kontrolė (2 kanalų)
Autostart, Monitoraġġ tal-bieba ta' protezzjoni (2 kanali)
Autostart, Veiligheidsdeurcontrole (2-kanaals)
Start automatyczny, Nadzorowanie drzwi zabezpieczających
(2 kanałowe)
Declanşare automată, Control uşă de protecţie (bicanal)
Autostart, Skyddsdörrsövervakning (2-kanals)
Automatický štart, kontrola ochranných dverí (2-kanálová)
Samodejni zagon, Nadzor zaščitnih vrat (2-kanalno)
Automatický start, Monitorování ochranných dveří
(dvoukanálové)
Autostart, Védő-felügyelet (2-csatornás)
Otomatik start, Koruma kapısı denetlemesi (2 kanallı)
Автозапуск, Контроль защитной двери
(дву
хканальный)
自动启动 防护门监 (双通道
3TK2806
K3
K2
K1
655343332313
14 24 34 44 54 66
X5X1A1 (+)
A2 (-) X2 X4
X6
F1
X3
L-/N
L+/L1

Related product manuals