EasyManua.ls Logo

Siemens SCALANCE X101-1LD

Siemens SCALANCE X101-1LD
53 pages
To Next Page IconTo Next Page
To Next Page IconTo Next Page
To Previous Page IconTo Previous Page
To Previous Page IconTo Previous Page
Loading...
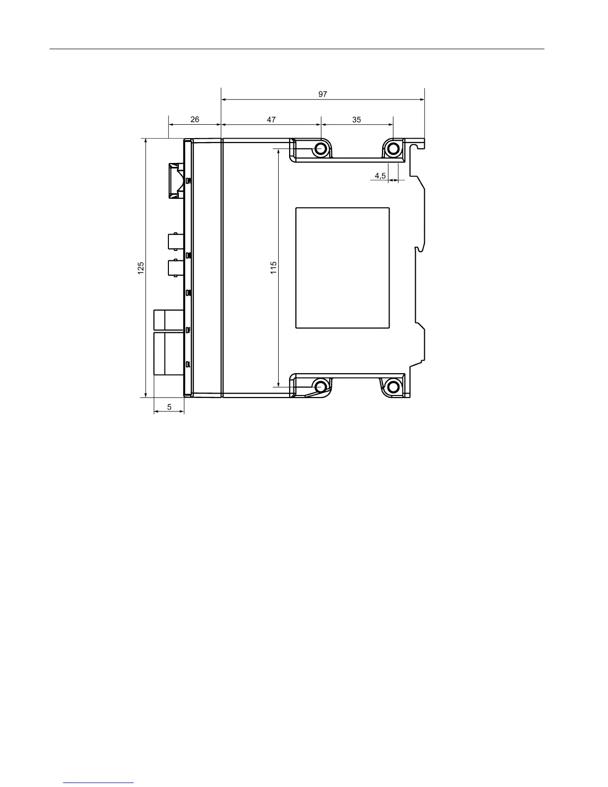
Dimension drawings
SCALANCE X-100 media converter
52 Operating Instructions, 04/2016, C79000-G8976-C346-02
Figure 9-2 Dimension drawing, side view

Other manuals for Siemens SCALANCE X101-1LD

Related product manuals