EasyManua.ls Logo

Siemens SINUMERIK 840 - Page 161

Siemens SINUMERIK 840
291 pages
Print Icon
To Next Page IconTo Next Page
To Next Page IconTo Next Page
To Previous Page IconTo Previous Page
To Previous Page IconTo Previous Page
Loading...
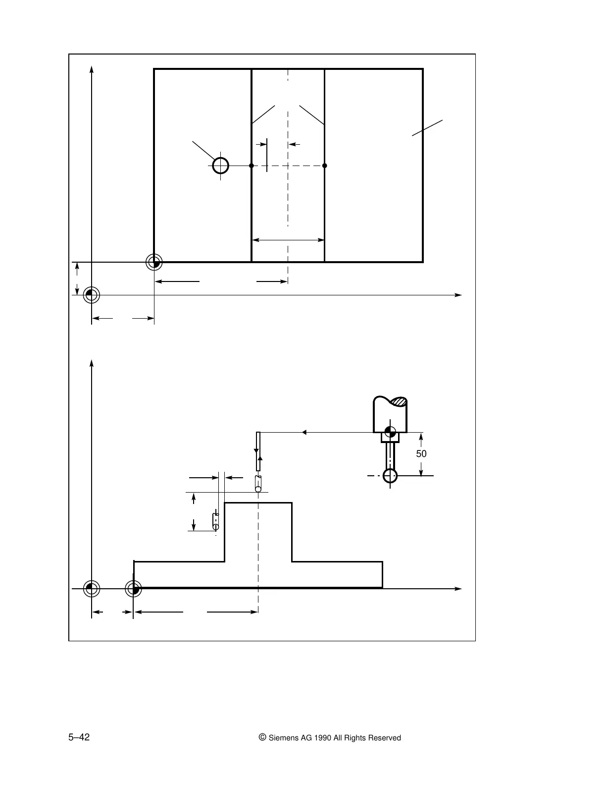
5 Measuring Cycles for Milling Machines and Machining Centres 07.90
5.2.8 L977 ZO determination on a web (paraxial)
Fig. 5.14 ZO determination on a web
X
R213
P2
Workpiece
Probe
P1
Z
X
M
(Applicate)
W
220
Y
X
M
70
(Ordinate)
W
50
(Abscissa)
70
N10
N15
R28
N35
R19
Width R32
Parallel
surfaces
X
act
(R210)
F
a
a
a
a
a
a
a
a
a
a
a
a
a
a
a
a
a
a
a
a
a
a
a
a
a
a
a
a
a
a
a
a
a
a
a
a
a
a
a
a
a
a
a
a
a
a
a
a
50
5–42 © Siemens AG 1990 All Rights Reserved 6FC5197- AB70
SINUMERIK 840/850/880 (BN)

Table of Contents

Other manuals for Siemens SINUMERIK 840

Related product manuals