EasyManua.ls Logo

Siemens SINUMERIK 840 - Page 182

Siemens SINUMERIK 840
291 pages
Print Icon
To Next Page IconTo Next Page
To Next Page IconTo Next Page
To Previous Page IconTo Previous Page
To Previous Page IconTo Previous Page
Loading...
07.90 5 Measuring Cycles for Milling Machines and Machining Centres
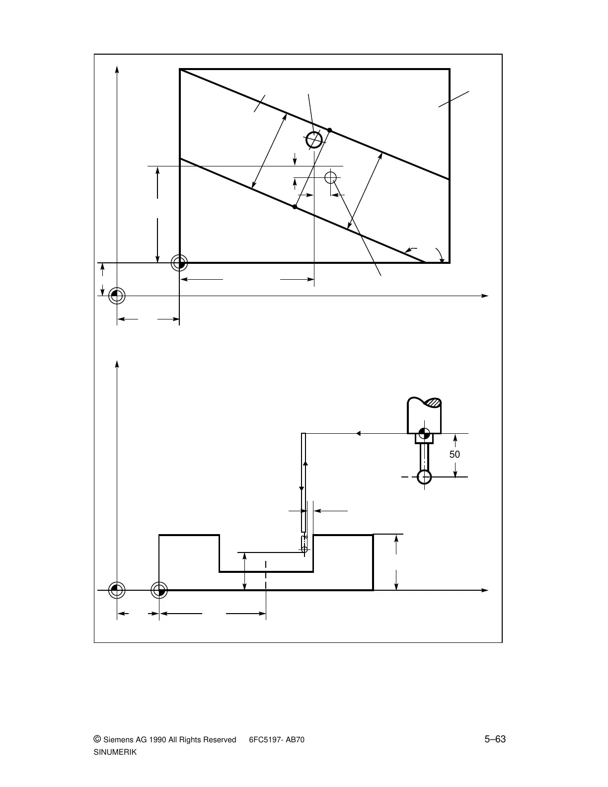
5.3.7 L979 ZO determination in slot (at random angles)
Fig. 5.22 ZO determination in internal slot
40
N35
Y (R214)
X
(R213)
Workpiece
Slot Probe
Actual
value
(R209)
P1
(Set value)
R32
P2
N10
Z
Y
M
(Applicate)
W
130
70
Y
X
M
70
(Ordinate)
W
50
Y
act
(R211)
(Abscissa)
50
R28
N15
X
act
(R210)
160
100
Set centre point
F
a
a
a
a
a
a
a
a
a
a
a
a
a
a
a
a
a
a
a
a
a
a
a
a
a
a
a
a
a
a
a
a
a
a
a
a
a
a
a
a
a
a
a
a
a
a
a
a
a
a
a
a
a
a
a
a
a
a
a
a
a
a
a
a
a
a
a
a
a
a
a
a
50
© Siemens AG 1990 All Rights Reserved 6FC5197- AB70 5–63
SINUMERIK 840/850/880 (BN)

Table of Contents

Other manuals for Siemens SINUMERIK 840

Related product manuals