EasyManua.ls Logo

Siemens SINUMERIK 850 - Page 173

Siemens SINUMERIK 850
291 pages
Print Icon
To Next Page IconTo Next Page
To Next Page IconTo Next Page
To Previous Page IconTo Previous Page
To Previous Page IconTo Previous Page
Loading...
5 Measuring Cycles for Milling Machines and Machining Centres 10.91
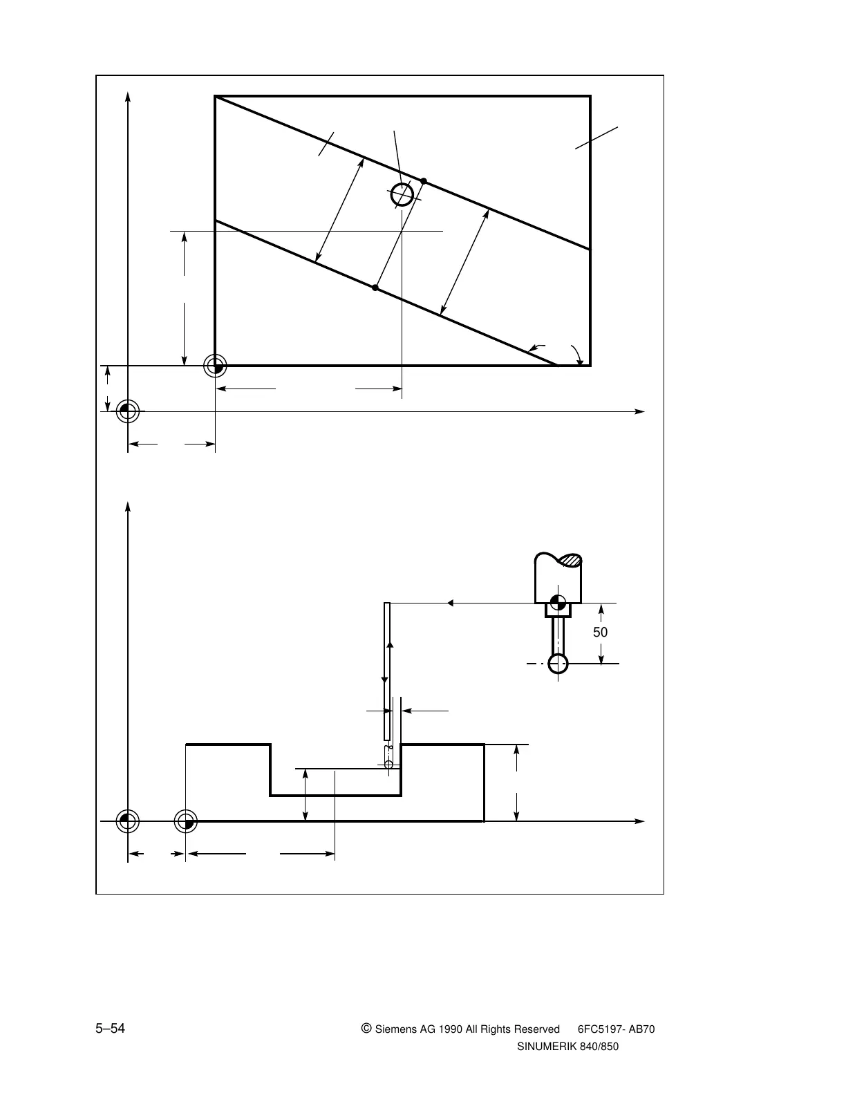
5.3.3 L979 Measure slot (at random angles)
Fig. 5.18 Measure slot
40
Workpiece
Slot Probe
Actual value
(R209)
P1
(Set value)
R42
P2
N505
50
Z
Y
M
(Applicate)
W
130
70
Y
X
M
70
(Ordinate)
W
50
Y
act
(R211)
(Abscissa)
50
R28
N510
N530
X
act
(R210)
160
F
a
a
a
a
a
a
a
a
a
a
a
a
a
a
a
a
a
a
a
a
a
a
a
a
a
a
a
a
a
a
a
a
a
a
a
a
a
a
a
a
a
a
a
a
a
a
a
a
a
a
a
a
a
a
a
a
a
a
a
a
a
a
a
a
a
a
a
a
a
a
a
a
a
a
a
a
a
a
a
a
50
5–54 © Siemens AG 1990 All Rights Reserved 6FC5197- AB70
SINUMERIK 840/850/880 (BN)

Table of Contents

Related product manuals