EasyManua.ls Logo

SIMAG SCN 35 - Page 5

Default Icon
38 pages
Print Icon
To Next Page IconTo Next Page
To Next Page IconTo Next Page
To Previous Page IconTo Previous Page
To Previous Page IconTo Previous Page
Loading...
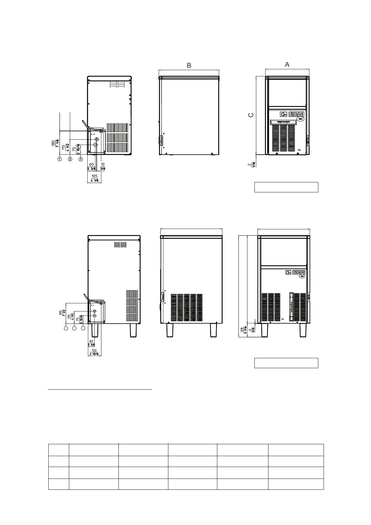
C
SDN 25 (mm) SDN 30 (mm) SDN 35 (mm) SCN 35 (mm) SCN 45 (mm)
A 334 377 377 485 485
B 454 552 552 572 572
C 597 637 637 721 816
CORD SET -
ELEK. KABEL
Ø 20 WATER OUTLET -
WASSERABFLUSS
G3/4" WATER INLET -
WASSEREINLAUF
SDN 25 - 30
SCN 35 - 45
12
3
1
2
3
B
A
C
B
A
C

Related product manuals