EasyManua.ls Logo

Sime AR4 - Page 14

Sime AR4
Print Icon
To Next Page IconTo Next Page
To Next Page IconTo Next Page
To Previous Page IconTo Previous Page
To Previous Page IconTo Previous Page
Loading...
1.1 INTRODUCCION
Las calderas de hierro fundido AR -
ARB freestanding” son proyectadas y
construidas en conformidad con la
Directiva Europea CEE 92/42.
Funcionan con gasóleo, con una com-
bustión perfectamente equilibrada y
los muy altos rendimientos permiten
conseguir importantes ahorros de
combustible.
La serie ARB” es una caldera mixta
para la calefacción y la producción de
agua caliente sanitaria, mientras la
serie AR” es una caldera sólo para la
calefacción.
Los grupos térmicos AR” se suminis-
tran en tres bultos separados: cuerpo
caldera, la envolvente con una bolsita
conteniente los documentos y el panel
de mandos.
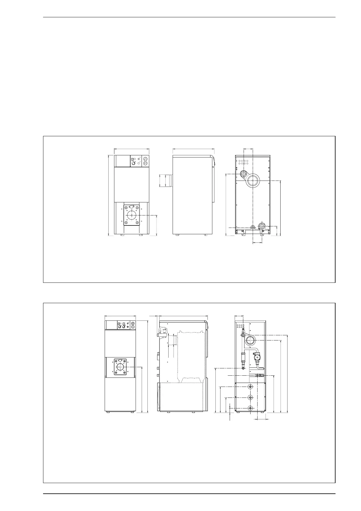
12
1 DESCRIPCION DE LA CALDERA
400
P
105
105
710
630
110
ø140
ø130
925
235
S
R
M
460
35
715
12 5
12 5
680
137 0
ø140
ø130
660
390
230
70
555
1075
115 5
R
M1
M
S
U
C
E
1.2 DIMENSIONES
1.2.1 Serie “AR”
1.2.2 Serie “ARB”
Fig. 1
AR3 AR4 AR5
P Profundidad 375 475 575
M Ida instalación 1
1
/
2
”1
1
/
2
”1
1
/
2
R Retorno instalación 1
1
/
2
”1
1
/
2
”1
1
/
2
S Vaciado caldera 1/2” 1/2” 1/2”
ARB4 ARB5
M1 Ida instalación de zona 1
1
/
4
”1
1
/
4
M Ida instalación 1” 1”
R Retorno instalación 1” 1”
S Vaciado caldera 1/2” 1/2”
E Entrada agua sanitaria 3/4” 3/4”
C Recirculación 3/4” 3/4”
U Salida agua sanitaria 3/4” 3/4”
Fig. 1/a

Table of Contents

Other manuals for Sime AR4

Related product manuals