EasyManua.ls Logo

Sime AR4 - Page 34

Sime AR4
Print Icon
To Next Page IconTo Next Page
To Next Page IconTo Next Page
To Previous Page IconTo Previous Page
To Previous Page IconTo Previous Page
Loading...
(13), en bloquant le tout avec la bar-
rette d'arrêt des capillaires fournie à
la livraison;
enlever le bouchon (14) et visser la
sonde de l'hydromètre avec soupape
de retenue;
terminer l’assemblage en fixant le
couvercle (12) sur les côtés.
NOTE: Dans les documents de la chau-
dière, conserver le "Certificat d'essai"
inséré dans la chambre de combustion.
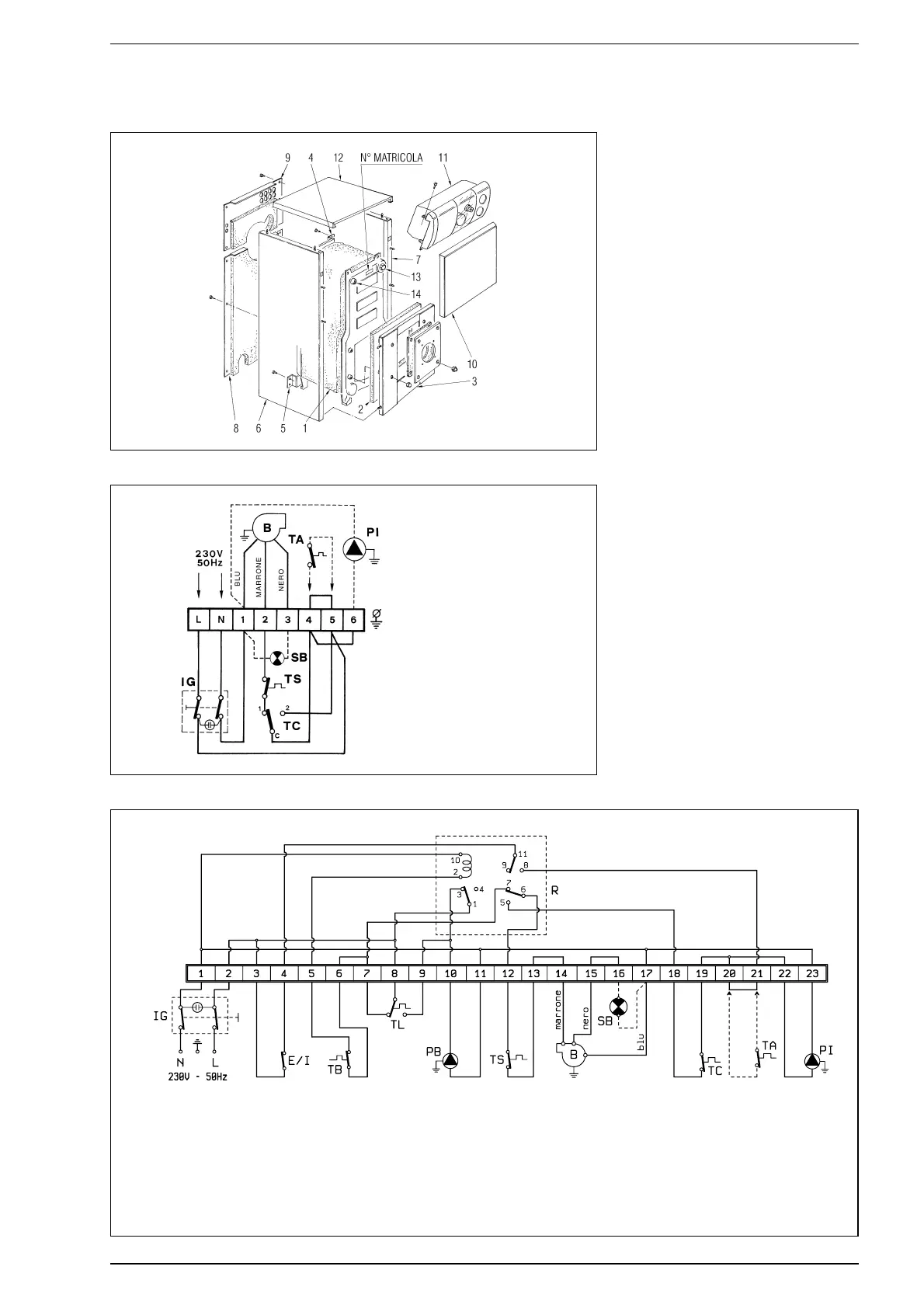
2.6 BRANCHEMENT ELECTRIQUE
La chaudière est munie d’un câble élec-
trique de alimentation et doit être ali-
mentée avec une tension monophasé
de 230V - 50Hz par l’intermédiaire
d’un interrupteur général protégé par
des fusibles.
Le thermostat d’ambian-
ce, nécessaire pour obtenir une
meilleure régulation de la températu-
re, devra être relié comme indiqué
sur les schémas (fig. 6). Raccorder
ensuite le câble d'alimentation du brû-
leur et de la pompe de circulation du
système fournis à la livraison.
REMARQUE: L’appareil doit être relié
à une installation de mise à la terre
efficace. Le fabricant décline toute
responsabilité pour eventuels acci-
dents dus à la non mise à terre de la
chaudière. Avant de procéder à toute
opération sur le tableau électrique,
débrancher l’alimentation électrique.
32
LEGENDE
TS Aquastat de sécurité
TA Thermostat d’ambiance
TC Aquastat chaudière
IG Interrupteur général
PI Pompe installation
B Brûleur
SB Lampe de mise en
sécurité du brûleur
Fig. 6
Modèle “AR”
Fig. 5
Modèle “ARB”
LEGENDE
TS Aquastat de sécurité
SB Lampe de mise en
sécurité du brûleur
EI Interrupteur Eté - Hiver
TA Thermostat d’ambiance
TB Aquastat de ballon
TC Aquastat chaudière
TL Aquastat limite
IG Interrupteur général
PB Pompe de charge ballon
PI Pompe installation
B Brûleur
R Relais
Fig. 6/a

Table of Contents

Other manuals for Sime AR4

Related product manuals