EasyManua.ls Logo

Sime AR4 - Page 62

Sime AR4
Print Icon
To Next Page IconTo Next Page
To Next Page IconTo Next Page
To Previous Page IconTo Previous Page
To Previous Page IconTo Previous Page
Loading...
60
1.1 INTRODUCERE
Cazanele AR - ARB freestanding”
sunt realizate din fonta si sunt fabrica-
te conform directivelor Nor-mativei de
Randament CEE 92/42. Sunt cazane
cu functionare pe combustibil lichid
sau gaze naturale.
Arderea perfect echilibrata si ran-
damentul ridicat al cazanului, permit o
reducere semnificativa a costurilor de
functionare.
Cazanele din seria ARB” sunt cazane
mixte ce pot fi utilizate atat pentru
incalzire cat si pentru pre-pararea
A.C.M. Cazanele din seria AR” se pot
utiliza doar pentru incalzire.
Cazanele AR” sunt livrate in trei colete
separate care contin: corpul cazanului,
mantaua cu mapa care contine docu-
mentatia si tabloul de comanda.
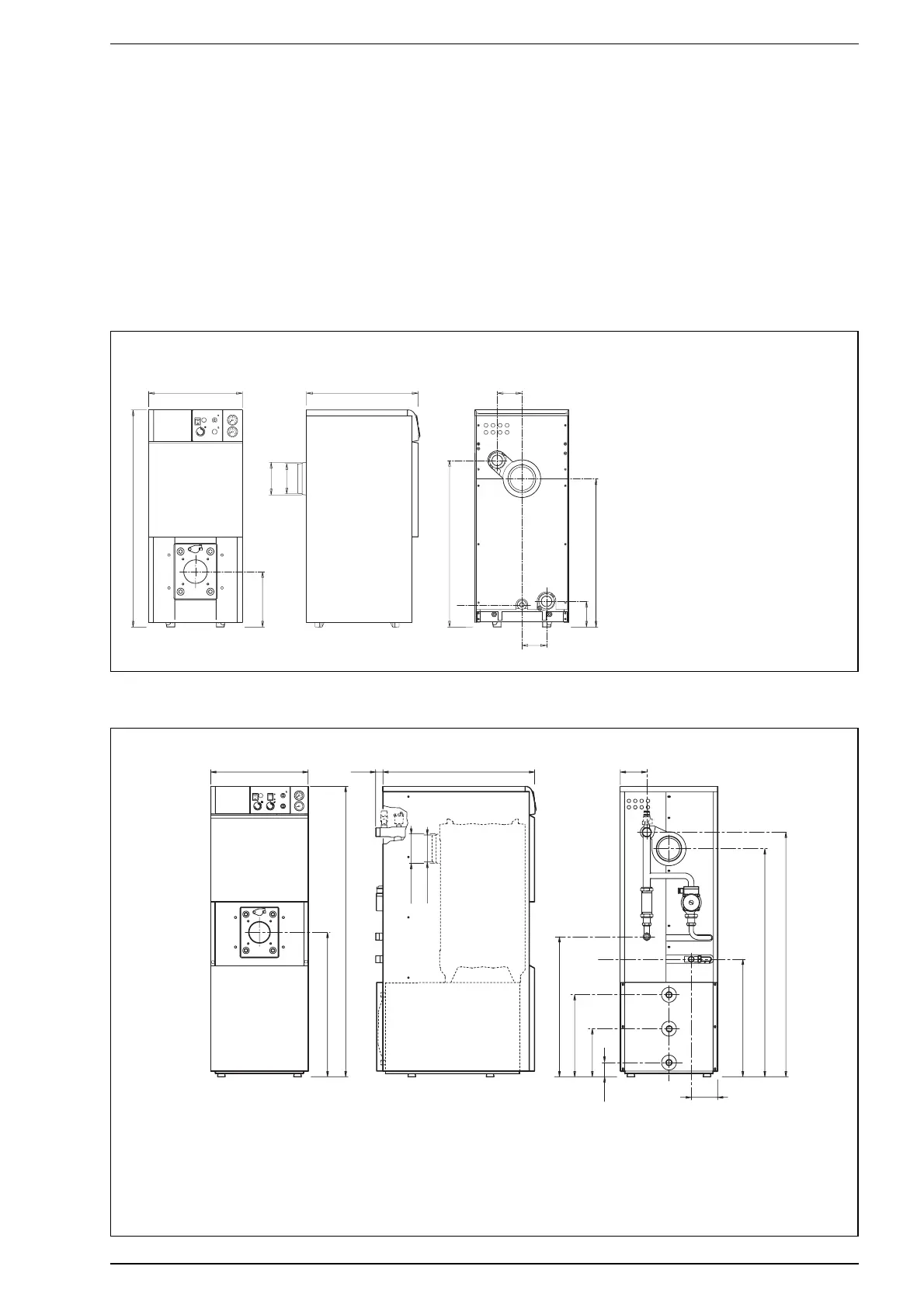
1 DESCRIEREA CAZANULUI
400
P
105
105
710
630
110
ø140
ø130
925
235
S
R
M
460
35
715
12 5
12 5
680
137 0
ø140
ø130
660
390
230
70
555
107 5
115 5
R
M1
M
S
U
C
E
1.2 DIMENSIUNI
1.2.1 Seria “AR”
1.2.2 Seria “ARB”
Fig. 1
AR3 AR4 AR5
P Adancime 375 475 575
M Racord tur 1
1
/
2
”1
1
/
2
”1
1
/
2
R Racord retur 1
1
/
2
”1
1
/
2
”1
1
/
2
S Racord golire 1/2” 1/2” 1/2”
ARB4 ARB5
M1 Racord tur de zona 1
1
/
4
”1
1
/
4
M Racord tur 1” 1”
R Racord retur 1” 1”
S Racord golire 1/2” 1/2”
ARB4 ARB5
E Racord intrare apa rece 3/4” 3/4”
C Racord recirculare 3/4” 3/4”
U Racord iesire A.C.M. 3/4” 3/4”
Fig. 1/a

Table of Contents

Other manuals for Sime AR4

Related product manuals