EasyManua.ls Logo

Sime AR5 - Page 3

Sime AR5
Print Icon
To Next Page IconTo Next Page
To Next Page IconTo Next Page
To Previous Page IconTo Previous Page
To Previous Page IconTo Previous Page
Loading...
1.1 INTRODUZIONE
Le caldaie di ghisa AR - ARB freestan-
ding” sono studiate e progettate in linea
con i dettami della Direttiva Rendimenti
CEE 92/42.
Funzionano a gasolio con una combustione
perfettamente equilibrata e gli elevati rendi-
menti consentono di realizzare cospicui ri-
sparmi nei costi di esercizio.
La serie ARB” è una caldaia mista per ri-
scaldamento e produzione acqua calda,
mentre la serie AR” è solo per riscalda-
mento.
I gruppi termici AR” vengono forniti in tre
colli separati: corpo caldaia, mantello con
sacchetto contenente i documenti e pan-
nello di comando.
1
1 DESCRIZIONE DELL’ APPARECCHIO
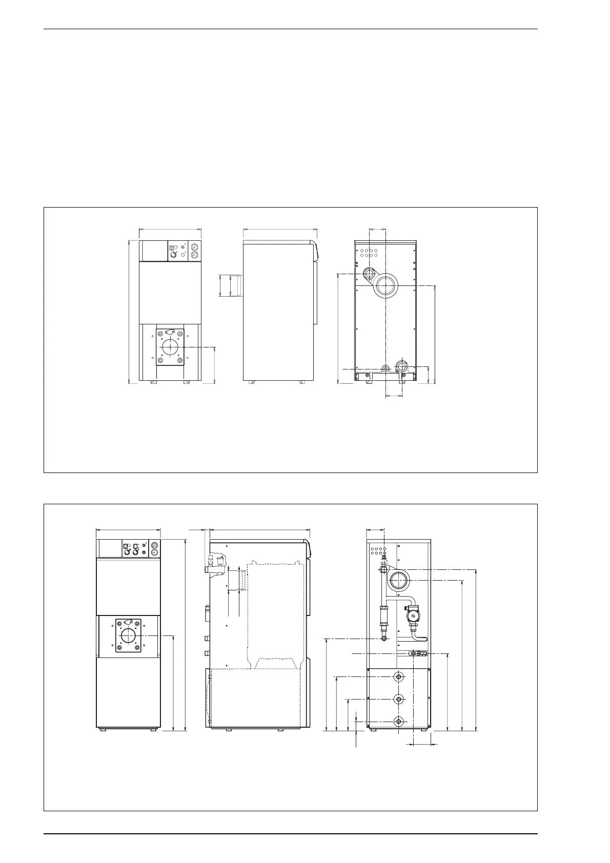
400
P
105
105
710
630
110
ø140
ø130
925
235
S
R
M
460
35
715
12 5
12 5
680
137 0
ø140
ø130
660
390
230
70
555
1075
115 5
R
M1
M
S
U
C
E
1.2 DIMENSIONI
1.2.1 Serie “AR”
1.2.2 Serie “ARB”
Fig. 1
AR3 AR4 AR5
P Profondità 375 475 575
M Mandata impianto 1
1
/
2
”1
1
/
2
”1
1
/
2
R Ritorno impianto 1
1
/
2
”1
1
/
2
”1
1
/
2
S Scarico caldaia 1/2” 1/2” 1/2”
ARB4 ARB5
M1 Mandata impianto a zone 1
1
/
4
”1
1
/
4
M Mandata impianto 1” 1”
R Ritorno impianto 1” 1”
S Scarico caldaia 1/2” 1/2”
ARB4 ARB5
E Entrata acqua sanitaria 3/4” 3/4”
C Ricircolo 3/4” 3/4”
U Uscita acqua sanitaria 3/4” 3/4”
Fig. 1/a

Table of Contents

Other manuals for Sime AR5

Related product manuals