EasyManua.ls Logo

Sime ECOMAXI VB 200 - Page 44

Sime ECOMAXI VB 200
Print Icon
To Next Page IconTo Next Page
To Next Page IconTo Next Page
To Previous Page IconTo Previous Page
To Previous Page IconTo Previous Page
Loading...
5
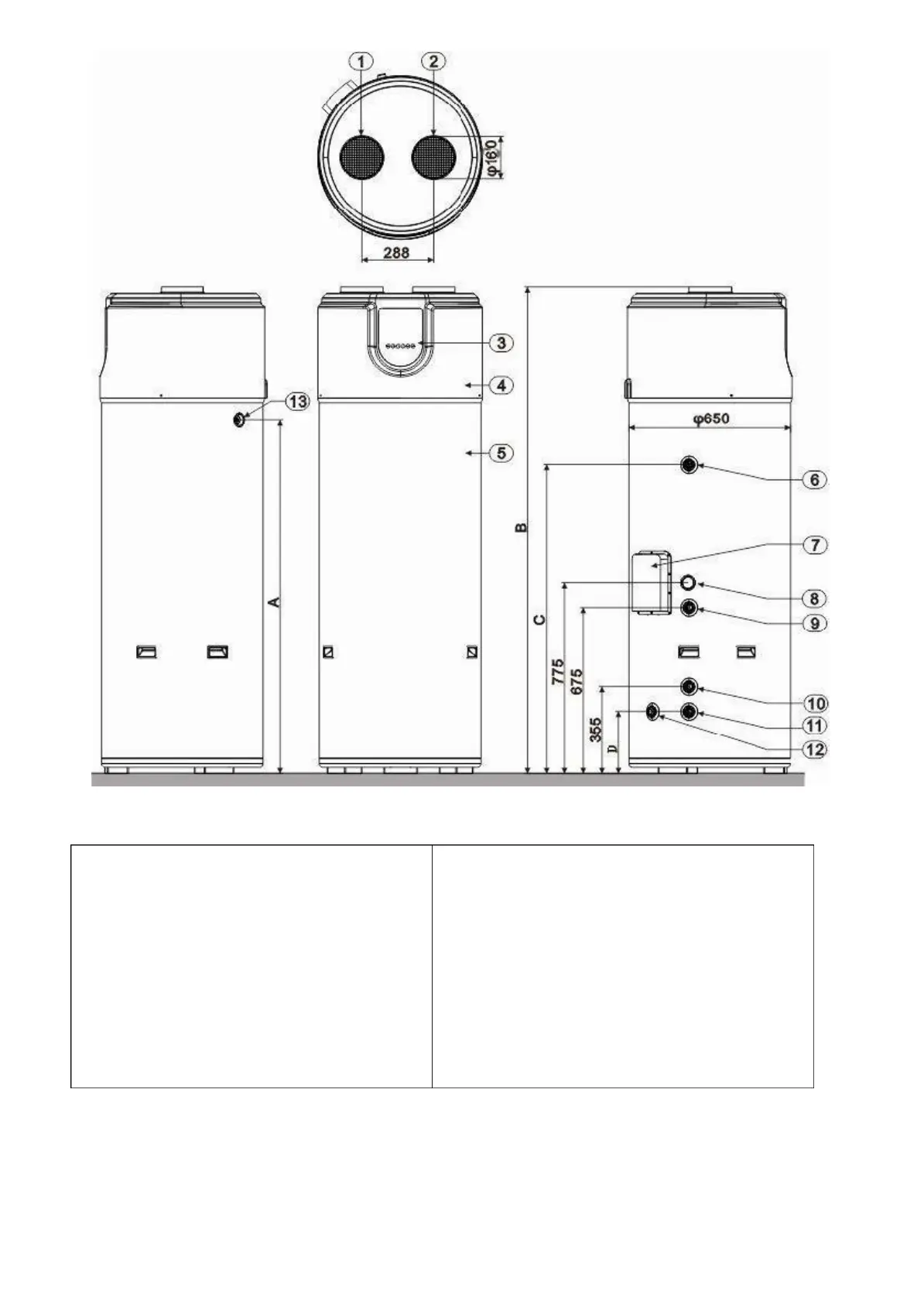
Part names:
1. Air inlet φ160mm
2.Air outlet φ160mm
3.Control panel
4.Housing cover
Fig.3.2 Appliance layout and dimensions
9.Solar energy inlet G 3/4" F
10.Solar energy outlet G 3/4" F
11.Cold water inlet G 3/4" F
12.Sewage water outlet G 3/4" F
5.Water tank 300 litre/200 litre
6.Hot water outlet G 3/4" F
7.Electrical box (containing
non-self-resetting thermal cut-out, electric
heating element and electronic anode)
8.Magnesium rod
13.Condensate outlet G 1/2" F

Other manuals for Sime ECOMAXI VB 200

Related product manuals