EasyManua.ls Logo

Sime Format.zip 25 BF - Page 38

Sime Format.zip 25 BF
Print Icon
To Next Page IconTo Next Page
To Next Page IconTo Next Page
To Previous Page IconTo Previous Page
To Previous Page IconTo Previous Page
Loading...
36
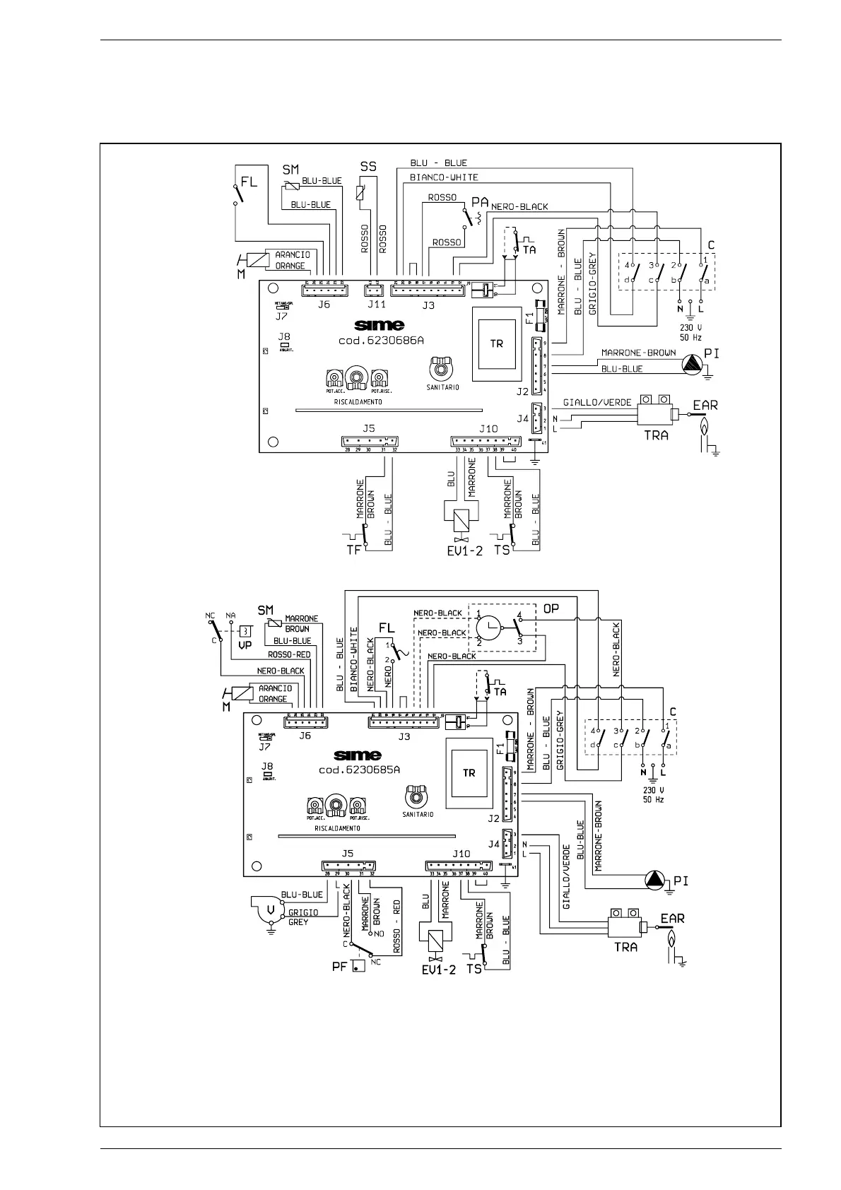
LEYENDA
F1 Fusible (1.6 AT)
TR Transformador 230/24V
PI Bomba instalación
EV1-2 Bobina válvula de gas
V Ventilador
PF Presóstato humos
VP Válvula presostática
M Modulador
C Selector
OFF/VER/INV/DESBLOQUEO
SM Sonda calefacción
SS Sonda sanitaria
TA Cronotermóstato
EAR
Electrodo de encendido/detección
TRA Transformador de encendido
TS Termóstato de seguridad
PA Presóstato agua
FL Medidor de flujo
TF Termóstato de humos
OP Reloj programador (sólo x GB)
Nota: El cronotermóstato debe ser
conectado a los bornes 10-11 del
conector “TA” luego de haber quitado el
puente.
Fig. 13
2.10.3 Esquema eléctrico
Modelo “25 BF - 30 BF”
Modelo “25 OF”

Related product manuals